Bénéficiez des services de nos partenaires locaux soigneusement sélectionnés
pour vous accompagner dans votre parcours d'achat immobilier

Pour habiter ou investir

— L'union 31240 —
365 000 €
88 m²
4 pièces
parkingbalcon/terrasseascenseur

Nos partenaires locaux
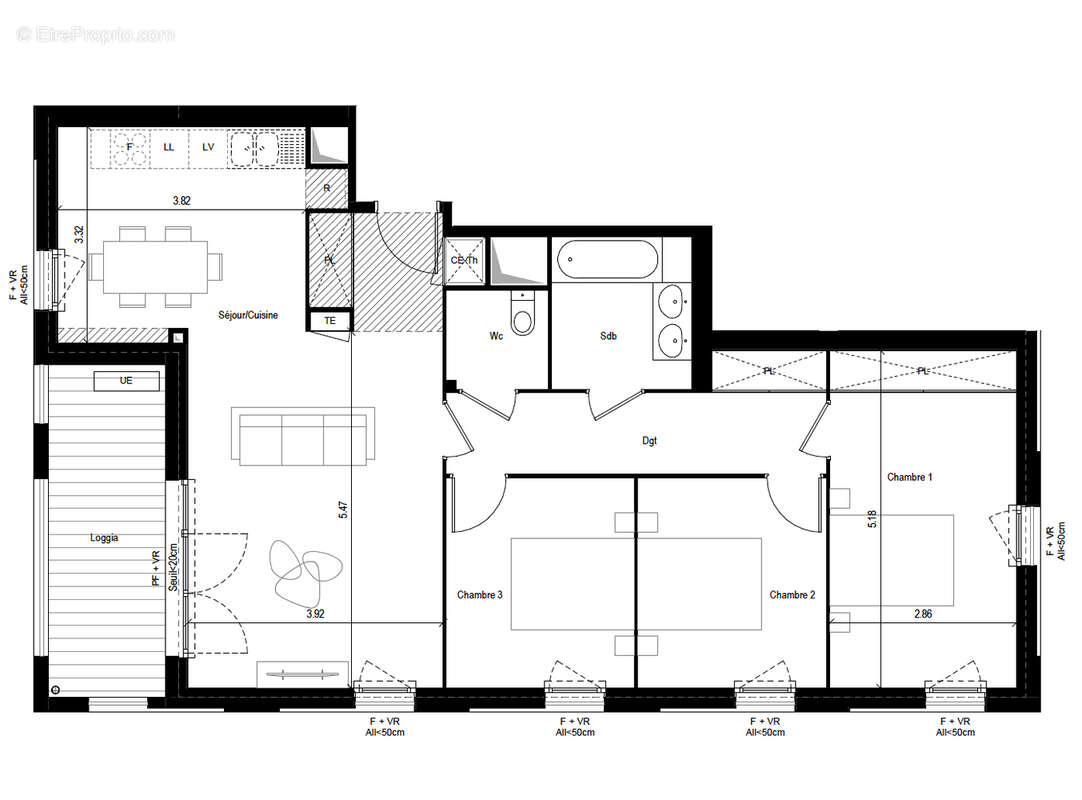
L'Union Centre Au 2ème étage sur 3 on vous propose ici un appartement fonctionnel en plein coeur de l'Union. Composé d'un séjour cuisine de 38,15m2 exposé sud-ouest sur balcon de 9,20m2, 3 chambres de 14,80, 9,35 et 9,35m2, une salle de bain et un wc indépendant. 2 places de parking en sous-sol Prestations soignées : isolation renforcée, PAC individuelle, ballon thermodynamique, carrelage 45*45, parquet stratifié dans les chambres, volets roulants électriques, peinture lisse ..... L'appartement s'implante sur un site remarquable face à l'Église Saint-Jean-Baptiste. La ville entre dans une nouvelle phase de son histoire en métamorphosant son coeur de ville et en donnant naissance à un nouveau lieu de vie. Privilège rare, cette parenthèse urbaine s'épanouit tout en douceur dans le calme d'un aménagement paysager intérieur conçu comme « une balade dans les bois » mêlant lieux de vie et d'échanges. Ce parcours propose de déambuler à travers différentes ambiances largement arborées pour créer des îlots de fraîcheur : les fourrés, la lisière, le bosquet, la clairière. La promenade se termine par une forêt-jardin, plantée d'arbres fruitiers et de massifs de petites baies à savourer sans modération par les résidents. BIEN NON SOUMIS AU DPE Pour tout renseignement : Féänor MAMEO [Coordonnées masquées]
Voir plus

Référence: CLU-C2 201
Honoraires à la charge du vendeur.

Prêt immobilier

Vous souhaitez connaître votre capacité d’emprunt et trouver le meilleur crédit immobilier ?
Réaliser une simulation gratuite

Appartement à L'UNION
Appartement à L'UNION
Appartement à L'UNION
Appartement à L'UNION
Appartement à L'UNION
Ce site est protégé par reCAPTCHA la Politique de confidentialité et les Conditions d’utilisation de Google s’appliquent.
Obtenir un prêt immobilier au meilleur taux ?

En poursuivant votre navigation sans modifier vos paramètres, vous acceptez l'utilisation de cookies susceptibles de réaliser des statistiques de visite. Cliquez ici pour plus d'informations