Maison garches 4 pièce(s)

— Garches 92380 —
785 944 €
71 m² / 273 m²
4 pièces
jardin

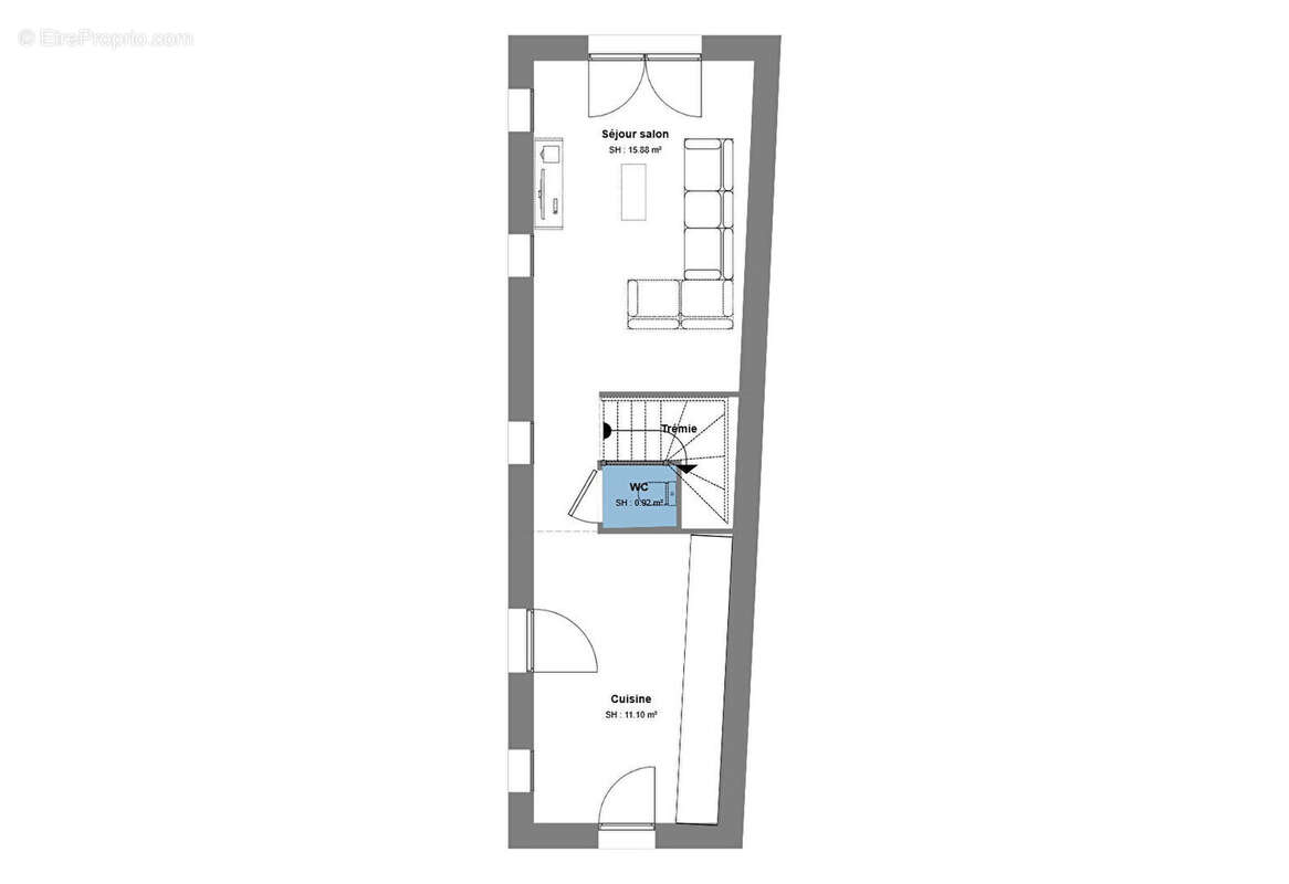
Nous vous proposons une maison RT 2025 au coeur du centre ancien de Garches . Sur une parcelle privative de 273 m2 , la maison est composée: - au rdc : une entrée sur une cuisine ouverte, un WC et un salon ( extension véranda ou terrasse possible) - à l'étage: un escalier distribue une chambre avec balcon, une salle de bains avec WC et une autre chambre aussi avec balcon. - sous combles: une chambre avec espace dressing. Le tout sur un jardin clos et arboré avec 2 places de stationnement. Accès aux écoles et commerces du centre ville à pied. RER GARCHES-MARNES LA COQUETTE à 8 minutes à pied.
Voir plus

Référence: 1670
Honoraires à la charge du vendeur.
Barème des honoraires
DPE
A
B
C
D
E
F
G
GES
A
B
C
D
E
F
G

Prêt immobilier

Vous souhaitez connaître votre capacité d’emprunt et trouver le meilleur crédit immobilier ?
Réaliser une simulation gratuite

Maison à GARCHES
Maison à GARCHES
Maison à GARCHES
Maison à GARCHES
Maison à GARCHES
Maison à GARCHES
Ce site est protégé par reCAPTCHA la Politique de confidentialité et les Conditions d’utilisation de Google s’appliquent.
Obtenir un prêt immobilier au meilleur taux ?

En poursuivant votre navigation sans modifier vos paramètres, vous acceptez l'utilisation de cookies susceptibles de réaliser des statistiques de visite. Cliquez ici pour plus d'informations