Bénéficiez des services de nos partenaires locaux soigneusement sélectionnés
pour vous accompagner dans votre parcours d'achat immobilier

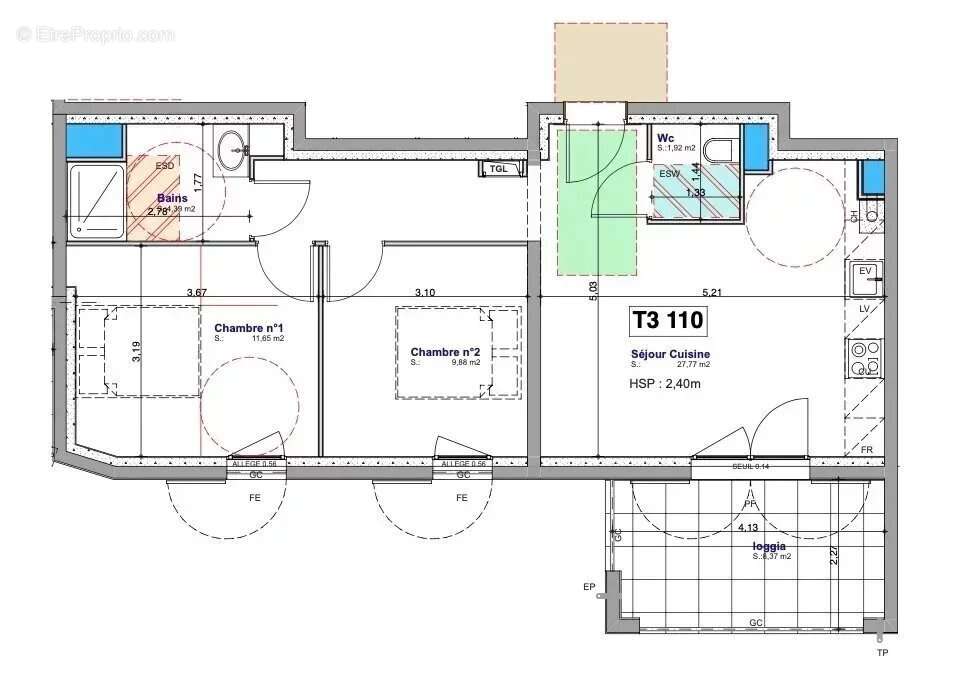
Rognes – t3 lot 110 neuf avec loggia, exposition sud et box fermé en sous-sol

— Rognes 13840 —
280 000 €
55 m²
3 pièces
ascenseur

Nos partenaires locaux
Bienvenue chez une agence familiale qui s'engage à un service immobilier d'exception. Faites confiance à notre expertise pour transformer vos projets immobiliers en réussites remarquables.

Dans le charmant village de Rognes, au cœur de la nouvelle place de village, découvrez ce T3 lumineux de 55,61 m², situé au 1er étage d'une résidence neuve de standing avec ascenseur et box fermé en sous-sol.

L'appartement comprend une belle pièce de vie de 27,77 m² avec cuisine ouverte donnant sur une loggia de 8,37 m² exposée plein Sud, deux chambres de 11,65 m² et 9,88 m², une salle de bain de 2,78 m² et des WC séparés.

Les + du programme :

- Loggia bien orientée, à l'abri des regards

- Exposition Sud idéale

- Résidence neuve avec ascenseur et prestations de qualité

- Box fermé sécurisé en sous-sol

- Éligible au nouveau PTZ dès le 1er avril 2025

Prix de vente : 280.000 € TTC (Honoraires à la charge du vendeur)

D'autres lots sont disponibles, T2 et T3 de 35 à 65 m².

Envie d'en savoir plus ? Contactez-nous !

Ce bien a retenu votre intérêt ? Pour organiser la visite avec nous, rien de plus simple, prenez rendez-vous en ligne au moment qui vous convient le mieux.

Les informations sur les risques auxquels ce bien est exposé sont disponibles sur le site Géorisques : www.georisques.gouv.fr.

Annonce rédigée sous la responsabilité éditoriale de Mme PEFFERT Laura , agent commercial (EI), immatriculé au RSAC de Salon-de-Provence sous le n° 904 617 404, sans détention de fonds, agissant pour le compte de la SARL Abriculteurs immobilier, au capital de 5 000 €, immatriculée sous le SIREN n° 837 704 584, titulaire de la carte professionnelle n° CPI 75[Coordonnées masquées]25 842 délivrée par la CCI de Paris Île-de-France, dont le représentant légal est M. Adrien Piot, ayant son siège social au 12 rue des Halles, 75001 Paris.

Bien présenté par Agences de France par délégation.
Agences de France – SIREN : 899413603 – Titulaire de la carte T : 29[Coordonnées masquées]00009 non habilité à percevoir des fonds
Voir plus

Référence: getkey_u_505638296
Honoraires à la charge du vendeur.

Prêt immobilier

Vous souhaitez connaître votre capacité d’emprunt et trouver le meilleur crédit immobilier ?
Réaliser une simulation gratuite

Appartement à ROGNES
Appartement à ROGNES
Appartement à ROGNES
Appartement à ROGNES
Ce site est protégé par reCAPTCHA la Politique de confidentialité et les Conditions d’utilisation de Google s’appliquent.
Obtenir un prêt immobilier au meilleur taux ?

En poursuivant votre navigation sans modifier vos paramètres, vous acceptez l'utilisation de cookies susceptibles de réaliser des statistiques de visite. Cliquez ici pour plus d'informations