Bénéficiez des services de nos partenaires locaux soigneusement sélectionnés
pour vous accompagner dans votre parcours d'achat immobilier

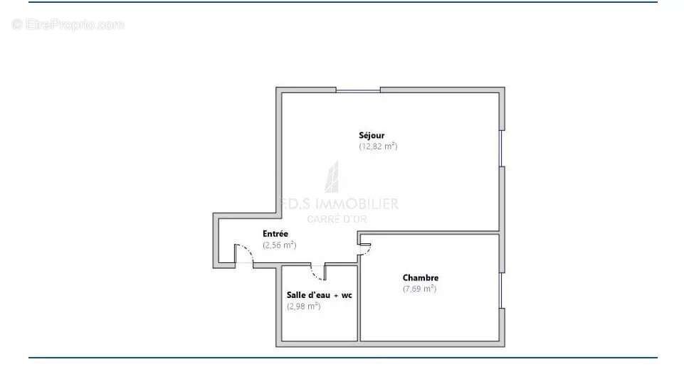
La turbie 2 pieces

— La Turbie 06320 —
189 000 €
26 m²
2 pièces

Nos partenaires locaux
LA TURBIE 2 PIECES En avant première, réhabilitation totale d'un petit immeuble composé de 5 logements. A trois cents mètres du centre ville à pied, à 2 minutes du trophée d'Auguste, Monaco à 10 kilomètres. Appartements du 2 pièces au 3/4 pièces avec jardin privatif. Les logements seront refait aux nouvelles normes(doublage des murs, huisserie double vitrage aluminium, climatisation réversible, production d'eau chaude basse consommation).
Certains appartements auront un espace extérieur ainsi qu'une vue partielle mer.
Très bon rapport locatif, la location de type Airbnb est autorisée. les travaux seront terminés à la fin
du 1er trimestre 2026.
Profitez d'une opportunité unique et d'un prix de lancement.
Voir plus

Référence: 86561882
DPE
A
B
C
D
E
F
G
GES
A
B
C
D
E
F
G

Prêt immobilier

Vous souhaitez connaître votre capacité d’emprunt et trouver le meilleur crédit immobilier ?
Réaliser une simulation gratuite

Appartement à LA TURBIE
Appartement à LA TURBIE
Appartement à LA TURBIE
Appartement à LA TURBIE
Appartement à LA TURBIE
Appartement à LA TURBIE
Ce site est protégé par reCAPTCHA la Politique de confidentialité et les Conditions d’utilisation de Google s’appliquent.
Obtenir un prêt immobilier au meilleur taux ?

En poursuivant votre navigation sans modifier vos paramètres, vous acceptez l'utilisation de cookies susceptibles de réaliser des statistiques de visite. Cliquez ici pour plus d'informations