Bénéficiez des services de nos partenaires locaux soigneusement sélectionnés
pour vous accompagner dans votre parcours d'achat immobilier

A vendre guipavas centre ville appartement duplex t4 70.5m² 2 chambres balcons terrasse parking privatif

— Guipavas 29490 —
199 500 €
71 m²
4 pièces
parkingbalcon/terrasse

Nos partenaires locaux
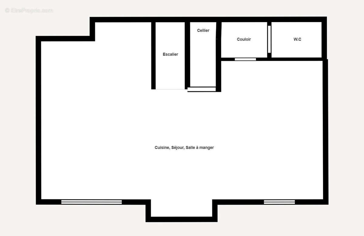
A VENDRE GUIPAVAS CENTRE APPARTEMENT T4 DUPLEX 70M² AVEC TERRASSE, JARDIN, BALCONS ET PARKING Référence : PC00510-KS Situé en centre-ville de Guipavas, à proximité immédiate des commerces, des transports et des établissements scolaires, cet appartement T4 en duplex se trouve au sein d'un immeuble récent construit en 2011. D'une surface habitable de 70,5 m², il offre au rez-de-chaussée une pièce de vie lumineuse, exposée sud, avec une cuisine aménagée et équipée. Cet espace donne un accès direct à une terrasse prolongée par un jardin privatif, apportant un extérieur appréciable en coeur de ville. A l'étage, l'espace nuit se compose de deux chambres, chacune bénéficiant d'un accès à un balcon, ainsi que d'une salle de bains. Un WC indépendant, un cellier et des rangements intégrés complètent l'agencement. L'appartement est en bon état général. Le chauffage est individuel électrique. Les menuiseries en PVC double vitrage et les volets roulants assurent un confort thermique et acoustique conforme aux standards actuels. Le bien dispose de deux balcons, d'une terrasse avec jardin privatif et d'une place de parking dédiée. Les commerces sont accessibles à environ 200 mètres, les arrêts de bus à trois minutes à pied et les écoles à cinq minutes. Le littoral se situe à environ 3,3 kilomètres. La performance énergétique est classée C avec une consommation de 176 kWh/m²/an et les émissions de gaz à effet de serre sont classées B avec 6 kg CO?/m²/an. Les informations sur les risques auxquels ce bien est exposé sont disponibles sur le site Géorisques : www.georisques.gouv.fr Ce bien est proposé par l'Agence Barraine IMMO Brest Port. Pour toute information complémentaire ou pour organiser une visite, il est possible de contacter l'agence. (5.00 % honoraires TTC à la charge de l'acquéreur.) Copropriété de 10 lots - dont 8 lots habitation. (Pas de procédure en cours). Charges annuelles : 480 euros.
Voir plus

Référence: PC00510-KS
Bien en copropriété. Nombre de lots : 10. Charges de copropriété : 480 €.
Honoraires d'agence de 5% à la charge de l'acquéreur
Barème des honoraires
DPE
A
B
C
D
E
F
G
GES
A
B
C
D
E
F
G

Prêt immobilier

Vous souhaitez connaître votre capacité d’emprunt et trouver le meilleur crédit immobilier ?
Réaliser une simulation gratuite

Appartement à GUIPAVAS
Appartement à GUIPAVAS
Appartement à GUIPAVAS
Appartement à GUIPAVAS
Appartement à GUIPAVAS
Appartement à GUIPAVAS
Appartement à GUIPAVAS
Appartement à GUIPAVAS
Appartement à GUIPAVAS
Appartement à GUIPAVAS
Appartement à GUIPAVAS
Appartement à GUIPAVAS
Appartement à GUIPAVAS
Appartement à GUIPAVAS
Appartement à GUIPAVAS
Appartement à GUIPAVAS
Appartement à GUIPAVAS
Appartement à GUIPAVAS
Appartement à GUIPAVAS
Appartement à GUIPAVAS
Ce site est protégé par reCAPTCHA la Politique de confidentialité et les Conditions d’utilisation de Google s’appliquent.
Obtenir un prêt immobilier au meilleur taux ?

En poursuivant votre navigation sans modifier vos paramètres, vous acceptez l'utilisation de cookies susceptibles de réaliser des statistiques de visite. Cliquez ici pour plus d'informations