Bénéficiez des services de nos partenaires locaux soigneusement sélectionnés
pour vous accompagner dans votre parcours d'achat immobilier

St cloud splendide villa 12 pièce(s) 440 m2 (1058m² terrain) et terrasse vue tour eiffel!

— Saint-Cloud 92210 —
3 290 000 €
440 m² / 1 058 m²
12 pièces
parkingbalcon/terrassejardin

Nos partenaires locaux
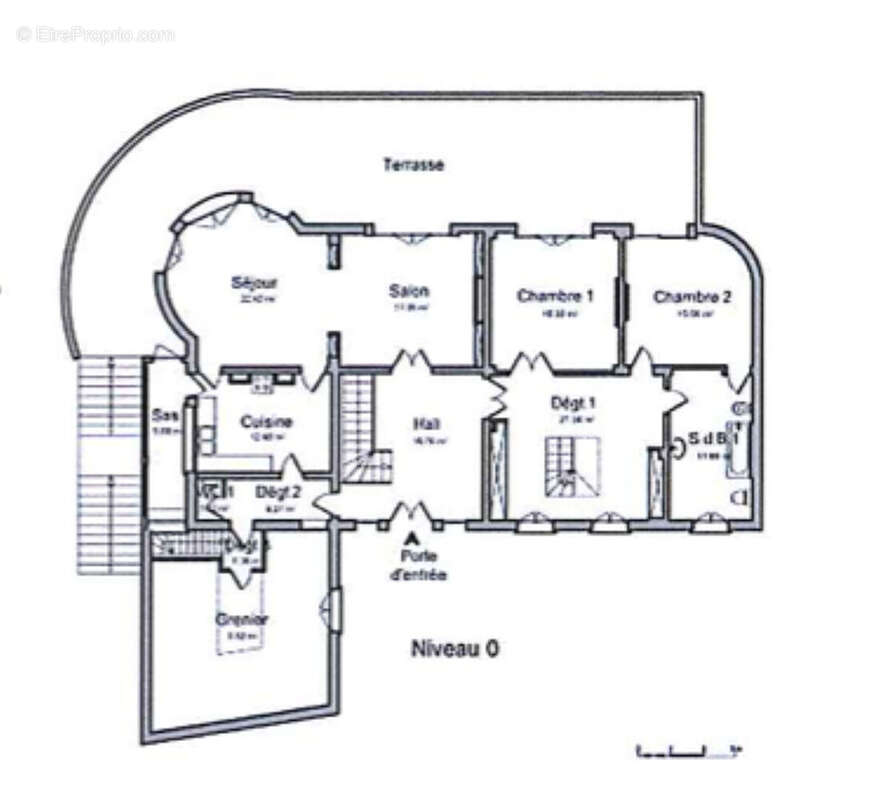
A VENDRE 92210 ST Cloud (Milon T2) Magnifique villa avec vue imprenable sur la Tour Eiffel et le Bois de Boulogne Située sur un terrain de 1058 m², cette belle propriété entièrement rénovée et chargée d'histoire, offre un cadre de vie unique sur 4 niveaux habitables pour une superficie totale de 440 m². A l'abri des regards et exposée sud-Est, elle bénéficie de plusieurs pièces de réception, bordées de terrasses, créant une atmosphère chaleureuse et lumineuse. Cette villa comprend :2 somptueuses suites, plusieurs chambres, dont une possible chambre de service, de vastes espaces de réception sur 140m² , et 2 belles terrasses pour profiter d'une vue dégagée sur la Tour Eiffel et le Bois de Boulogne. L'ensemble des structures, des extérieurs et des peintures ont été rénovés avec soin, offrant un charme intemporel et une sensation d'histoire dans chaque pièces. La villa dispose également d'un box spacieux pour plusieurs véhicules. Située à seulement 5 minutes du tramway T2 Milon et de la gare de Saint-Cloud et du centre ville et future station L15, cette propriété vous offre un potentiel incroyable, tant par sa situation géographique que par ses prestations haut de gamme. Un bien rare, alliant confort moderne et charme authentique. On pourrait encore imaginer une piscine...A ne pas manquer ! (proximité écoles, commerces et hôpital des 4 villes.) (2.81 % honoraires TTC à la charge de l'acquéreur.)
Voir plus

Référence: 51
Honoraires d'agence de 2.81% à la charge de l'acquéreur
Barème des honoraires
DPE
A
B
C
D
E
F
G
GES
A
B
C
D
E
F
G

Prêt immobilier

Vous souhaitez connaître votre capacité d’emprunt et trouver le meilleur crédit immobilier ?
Réaliser une simulation gratuite

Maison à SAINT-CLOUD
Maison à SAINT-CLOUD
Maison à SAINT-CLOUD
Maison à SAINT-CLOUD
Maison à SAINT-CLOUD
Maison à SAINT-CLOUD
Maison à SAINT-CLOUD
Maison à SAINT-CLOUD
Maison à SAINT-CLOUD
Maison à SAINT-CLOUD
Maison à SAINT-CLOUD
Maison à SAINT-CLOUD
Maison à SAINT-CLOUD
Maison à SAINT-CLOUD
Maison à SAINT-CLOUD
Maison à SAINT-CLOUD
Maison à SAINT-CLOUD
Ce site est protégé par reCAPTCHA la Politique de confidentialité et les Conditions d’utilisation de Google s’appliquent.
Obtenir un prêt immobilier au meilleur taux ?

En poursuivant votre navigation sans modifier vos paramètres, vous acceptez l'utilisation de cookies susceptibles de réaliser des statistiques de visite. Cliquez ici pour plus d'informations