Maison 132m² à faulquemont

— Faulquemont 57380 —
115 000 €
132 m² / 927 m²
5 pièces
parkingbalcon/terrassejardin

Située au coeur de la commune d'Eincheville, assurant une vie paisible, tout en étant proche des commodités locales et des écoles, cette maison familiale offre un cadre idéal.

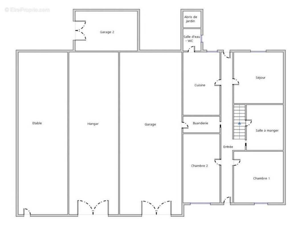
Avec une surface habitable de plus de 130 m², cette propriété, habitable de plain-pied, comprend; 3 chambres (dont 2 au rez-de-chaussée), 2 salles de bain, une cuisine / salle à manger parfaite pour les repas en famille, un séjour chaleureux avec accès à la terrasse donnant sur un grand jardin, pour profiter des beaux jours.

À l'étage de la maison, 2 pièces peuvent encore être rénovées, vous avez donc la possibilité d'y faire 2 chambres supplémentaires.

De plus, la maison dispose de 2 garages pouvant accueillir plusieurs voitures.
Donnant sur une grange de plus de 400 m², à rénover entièrement, elle offre la possibilité d'y faire plusieurs appartements. Vous avez donc 2 possibilités qui s'offrent à vous : louer la maison et rénover la grange pour votre habitation principale, ou l'inverse.

L'assainissement du village est assuré par une fosse septique fonctionnelle.

N'attendez plus, contactez moi !

Les informations sur les risques auxquels ce bien est exposé sont disponibles sur le site Géorisques : www.georisques.gouv.fr
Prix de vente : 115 000 ¤
Honoraires charge vendeur

Contactez votre conseiller SAFTI : Coralie RIZZO, Tél. : [Coordonnées masquées], E-mail : [Coordonnées masquées] - EI - Agent commercial immatriculé au RSAC de METZ sous le numéro 920 347 796.
Informations LOI ALUR :
Honoraires charge vendeur. (gedeon_26118_30790316)
Voir plus

Référence: 1124063
Honoraires à la charge du vendeur.
Barème des honoraires
DPE
A
B
C
D
E
F
G
GES
A
B
C
D
E
F
G

Prêt immobilier

Vous souhaitez connaître votre capacité d’emprunt et trouver le meilleur crédit immobilier ?
Réaliser une simulation gratuite

Photo 1 - Maison à FAULQUEMONT
Photo 1
Photo 2 - Maison à FAULQUEMONT
Photo 2
Photo 3 - Maison à FAULQUEMONT
Photo 3
Photo 4 - Maison à FAULQUEMONT
Photo 4
Photo 5 - Maison à FAULQUEMONT
Photo 5
Photo 6 - Maison à FAULQUEMONT
Photo 6
Photo 7 - Maison à FAULQUEMONT
Photo 7
Photo 8 - Maison à FAULQUEMONT
Photo 8
Photo 9 - Maison à FAULQUEMONT
Photo 9
Ce site est protégé par reCAPTCHA la Politique de confidentialité et les Conditions d’utilisation de Google s’appliquent.
Obtenir un prêt immobilier au meilleur taux ?

En poursuivant votre navigation sans modifier vos paramètres, vous acceptez l'utilisation de cookies susceptibles de réaliser des statistiques de visite. Cliquez ici pour plus d'informations