Maison 179m² à osthoffen

— Osthoffen 67990 —
572 000 €
180 m² / 600 m²
6 pièces
parkingjardinpiscine

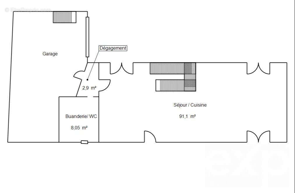
Grange Loft de 200 m² – Piscine, Spa, Jardin Ouest – À 15 minutes de Strasbourg Grange de 1940, entièrement restaurée en 2010, pour devenir un loft spectaculaire avec mezzanine et une pièce de vie traversante Est–Ouest de 91 m². L'ensemble ouvre directement sur un jardin plein Ouest, sans vis-à-vis, avec vue dégagée sur les champs. Composition du bien Intérieur Surface : 200 m² environ 3 chambres, chacune équipée de sa propre climatisation Possibilité d'une 4ème chambre sur la mezzanine (devis disponible) Suite parentale de 20 m² avec clim Chauffage au sol Grande pièce à vivre ouverte sur jardin Cuisine contemporaine Buanderie / rangements Extérieur Piscine, spa, cuisine d'été (barbecue + four à tarte flambée) Jardin plein Ouest, vue champs, aucun vis-à-vis Entrée privée avec portail automatique Garage 2 à 3 voitures Domotique complète – tout se pilote à distance La maison est entièrement connectée : Chauffage au sol Climatisation Caméras Portail Garage Alarme Lumières et intensité Domotique haut niveau = confort + sécurité + économies. Consommation maîtrisée Pour un bien de ce volume : Env. 2 000 €/an d'électricité + 500 € d'économie grâce aux panneaux solaires (estimation) C'est très rare pour 200 m² + piscine + spa. Localisation – Osthoffen Un cadre de vie premium : calme absolu, campagne chic, tout en étant à 15 minutes de Strasbourg. Accès rapide : écoles, commerces, axes principaux. À qui s'adresse cette maison ? Couple exigeant cherchant de l'espace Couple sans enfant qui veut un bien atypique et haut de gamme Couple avec un ado (idéal avec la mezzanine aménageable)

Honoraires inclus de 4% TTC à la charge de l'acquéreur. Prix hors honoraires 550 000 €. Classe énergie D, Classe climat B Montant moyen estimé des dépenses annuelles d'énergie pour un usage standard, établi à partir des prix de l'énergie de l'année 2021 : entre 2510.00 et 3410.00 €. Les informations sur les risques auxquels ce bien est exposé sont disponibles sur le site Géorisques : georisques.gouv.fr.

Votre conseiller eXp Realty : Tanguy LAIGNEAU
Agent commercial (Entreprise individuelle)
RSAC 841606262 STRASBOURG
Voir plus

Référence: VM37290-EXPFRANCE
Honoraires d'agence de 4% à la charge de l'acquéreur
Barème des honoraires
DPE
A
B
C
D
E
F
G
GES
A
B
C
D
E
F
G

Prêt immobilier

Vous souhaitez connaître votre capacité d’emprunt et trouver le meilleur crédit immobilier ?
Réaliser une simulation gratuite

Maison à OSTHOFFEN
Maison à OSTHOFFEN
Maison à OSTHOFFEN
Maison à OSTHOFFEN
Maison à OSTHOFFEN
Maison à OSTHOFFEN
Maison à OSTHOFFEN
Maison à OSTHOFFEN
Maison à OSTHOFFEN
Ce site est protégé par reCAPTCHA la Politique de confidentialité et les Conditions d’utilisation de Google s’appliquent.
Obtenir un prêt immobilier au meilleur taux ?

En poursuivant votre navigation sans modifier vos paramètres, vous acceptez l'utilisation de cookies susceptibles de réaliser des statistiques de visite. Cliquez ici pour plus d'informations