Bénéficiez des services de nos partenaires locaux soigneusement sélectionnés
pour vous accompagner dans votre parcours d'achat immobilier

Beuvange-sous-st-michel - maison a renover de 123 m² ! fort potentiel !

— Thionville 57100 —
262 000 €
123 m² / 334 m²
6 pièces
parkingbalcon/terrassejardin

Nos partenaires locaux
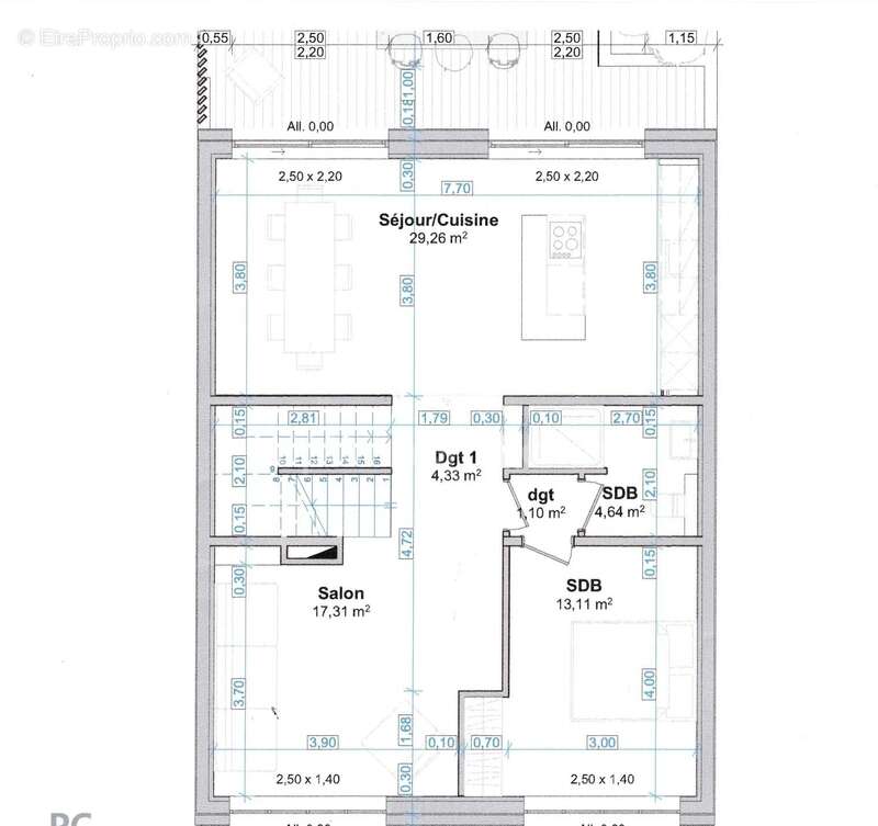
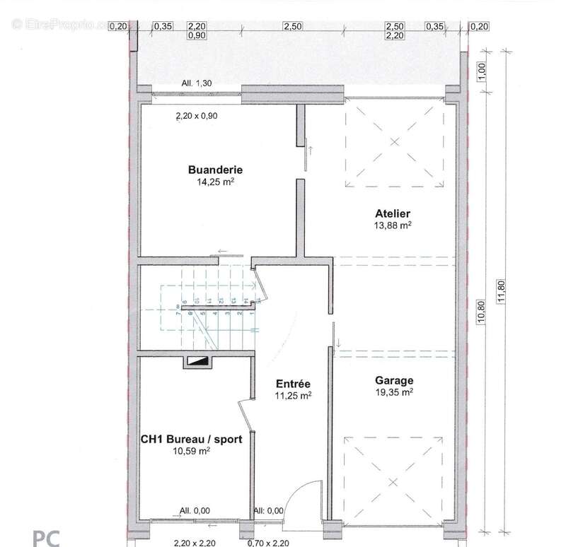
Frédéric HENRY, agent mandataire au sein du réseau Optimhome, vous propose à la vente cette maison à rénover intégralement, située dans un environnement authentique et particulièrement recherché, au cœur de Beuvange-sous-Saint-Michel, (commune de Thionville) à deux pas des axes autoroutiers pour le Luxembourg.
Implantée sur une parcelle close de 3,34 ares, cette propriété développe actuellement une surface habitable d'environ 123 m².
Elle bénéficie d'un projet de rénovation accompagné d'un permis de construire déjà accordé, permettant une extension significative de la surface totale jusqu'à environ 149 m².
Cette autorisation offre de nombreuses perspectives d'aménagement et constitue un atout majeur pour concrétiser un projet ambitieux et personnalisé.
Les volumes existants représentent une base saine et exploitable, laissant place à une reconfiguration complète des espaces selon vos besoins.
Ce bien se prête aussi bien à la création d'une résidence principale ou secondaire qu'à un projet d'investissement immobilier.
Le terrain propose également un espace extérieur adaptable, pouvant être aménagé selon vos usages et envies.
Pour toute information complémentaire ou pour organiser une visite, je vous invite à me contacter afin d'apprécier pleinement le potentiel de cette propriété. Les honoraires sont à la charge du vendeur.
Logement à consommation énergétique excessive : classe G
Les informations sur les risques auxquels ce bien est exposé sont disponibles sur le site Géorisques : www. georisques. gouv. fr.

Contactez Frédéric HENRY Entrepreneur Individuel, Agent commercial OptimHome (RSAC N°750 923 898 Greffe de THIONVILLE) [Coordonnées masquées] (réf. 598518 )
Voir plus

Référence: 830030266186
Honoraires à la charge du vendeur.
DPE
A
B
C
D
E
F
G
GES
A
B
C
D
E
F
G

Prêt immobilier

Vous souhaitez connaître votre capacité d’emprunt et trouver le meilleur crédit immobilier ?
Réaliser une simulation gratuite

Maison à THIONVILLE
Maison à THIONVILLE
Maison à THIONVILLE
Maison à THIONVILLE
Maison à THIONVILLE
Maison à THIONVILLE
Maison à THIONVILLE
Maison à THIONVILLE
Maison à THIONVILLE
Maison à THIONVILLE
Maison à THIONVILLE
Maison à THIONVILLE
Maison à THIONVILLE
Ce site est protégé par reCAPTCHA la Politique de confidentialité et les Conditions d’utilisation de Google s’appliquent.
Obtenir un prêt immobilier au meilleur taux ?

En poursuivant votre navigation sans modifier vos paramètres, vous acceptez l'utilisation de cookies susceptibles de réaliser des statistiques de visite. Cliquez ici pour plus d'informations