Bénéficiez des services de nos partenaires locaux soigneusement sélectionnés
pour vous accompagner dans votre parcours d'achat immobilier

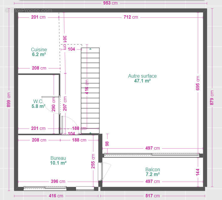
150m2 à halluin (59) avec vrc immobilier

— Halluin 59250 —
229 000 €
150 m²

Nos partenaires locaux

Opportunité pour artisan ou investisseur :
Immeuble à usage commercial comprenant des bureaux de 70m2 à l'étage et du stockage/garage en RDC. L'immeuble donne accès à 4 emplacements de parking.
Possibilité de diviser en créant une habitation à l'étage.

 
N'hésitez pas à contacter votre agence VRC Immobilier pour organiser une visite de ce bâtiment.
 

VRC Immobilier vous propose un prix de vente fixé à 229 000 €.


Alors, on visite ?
Suivez-nous sur les réseaux sociaux Facebook et Instagram : VRC Immobilier
Les informations sur les risques auxquels ce bien est exposé sont disponibles sur le site Géorisques : www.georisques.gouv.fr
Voir plus

Barème des honoraires

Prêt immobilier

Vous souhaitez connaître votre capacité d’emprunt et trouver le meilleur crédit immobilier ?
Réaliser une simulation gratuite

Commerce à HALLUIN
Commerce à HALLUIN
Commerce à HALLUIN
Commerce à HALLUIN
Commerce à HALLUIN
Commerce à HALLUIN
Commerce à HALLUIN
Commerce à HALLUIN
Commerce à HALLUIN
Ce site est protégé par reCAPTCHA la Politique de confidentialité et les Conditions d’utilisation de Google s’appliquent.
Obtenir un prêt immobilier au meilleur taux ?

En poursuivant votre navigation sans modifier vos paramètres, vous acceptez l'utilisation de cookies susceptibles de réaliser des statistiques de visite. Cliquez ici pour plus d'informations