Bénéficiez des services de nos partenaires locaux soigneusement sélectionnés
pour vous accompagner dans votre parcours d'achat immobilier

Commerce 1990m² à meaux

— Meaux 77100 —
1 800 000 €
1 990 m²

Nos partenaires locaux
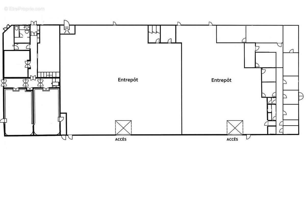
Iad France - Corinne Comte ([Coordonnées masquées]) vous propose : Ensemble d'entrepôt & bureaux - 1 990 m² environ

Situé sur un vaste terrain clos de 3 697 m² environ, cet ensemble offre une surface exploitable totale de 1 990,45 m² environ, parfaitement adapté à diverses activités.
Composition du bien :
2 grands entrepôts communiquant : Entrepôt 1 : 692 m² environ et Entrepôt 2 : 512 m² environ.
12 bureaux répartis sur deux niveaux (rez-de-chaussée + 1er étage)
Divers espaces : Cuisine, salle des fêtes, WC, etc.
? Accessibilité & logistique : zones de chargement / déchargement.

? Atouts majeurs : ? Surface divisible et possibilité d'îlotage pour créer plusieurs lots indépendants
? Bureaux sur deux niveaux

Idéal investisseur ou entreprise souhaitant regrouper activité sur un même site.
Contactez-nous pour plus d'informations ou organiser une visite.

Information d'affichage énergétique sur le bien associé à cette annonce : DPE NS indice 0 et GES NS indice 0. La présente annonce immobilière a été rédigée sous la responsabilité éditoriale de Mme Corinne Comte (ID 41952), Agent Commercial mandataire en immobilier immatriculé au Registre Spécial des Agents Commerciaux (RSAC) du Tribunal de Commerce de MEAUX sous le numéro 539309419
Retrouvez tous nos biens sur notre site internet. www.iadfrance.fr.
Informations LOI ALUR :
Honoraires charge vendeur. (gedeon_6727_32387939)
Voir plus

Référence: 1910957
Honoraires à la charge du vendeur.

Prêt immobilier

Vous souhaitez connaître votre capacité d’emprunt et trouver le meilleur crédit immobilier ?
Réaliser une simulation gratuite

Photo 1 - Commerce à MEAUX
Photo 1
Photo 2 - Commerce à MEAUX
Photo 2
Photo 3 - Commerce à MEAUX
Photo 3
Photo 4 - Commerce à MEAUX
Photo 4
Ce site est protégé par reCAPTCHA la Politique de confidentialité et les Conditions d’utilisation de Google s’appliquent.
Obtenir un prêt immobilier au meilleur taux ?

En poursuivant votre navigation sans modifier vos paramètres, vous acceptez l'utilisation de cookies susceptibles de réaliser des statistiques de visite. Cliquez ici pour plus d'informations