Les sables-d'olonne duplex à vendre 3 chambres 150m de la plage

— Les Sables-D'olonne 85100 —
240 000 €
53 m²
4 pièces

Vente interactive,
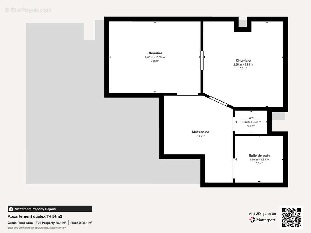
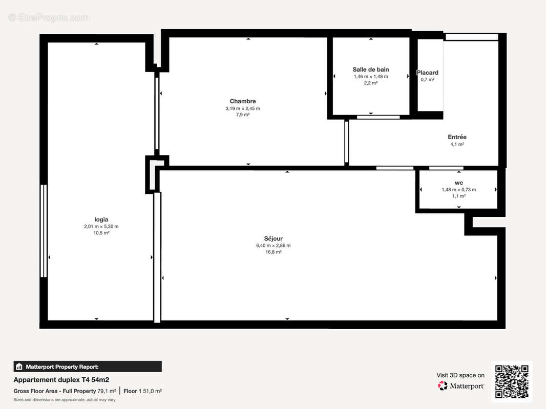
Découvrez cet appartement en duplex de 3 chambres au 4ème et dernier étage avec ascenceur.
L'appartement est idéalement situé pour se déplacer facilement:

à 150m de la Grande Plage des Sables d'Olonne, du Remblai avec ses restaurants.
à 400m du cœur de ville avec les commerces et les Halles
à 800m de la Gare

Son agencement optimisé offre une entrée avec rangements, un wc, salle de bain, chambre, la pièce de vie avec son espace cuisine et l'accès à la loggia. L'étage dispose d'un palier, une salle de douche, un wc et deux chambres.
Charges de copropriété 76€ par mois
Pour plus de renseignement, contactez Maxime de Noray au O6 59 54 31 91
Le prix de première offre possible est fixé à 240 000€ (honoraires inclus). Aucuns frais supplémentaires ne sont à prévoir. La participation à la vente interactive est soumise à une visite du bien et à la constitution d’un dossier de financement validé. Toutes les offres seront transmises au vendeur qui restera libre dans la sélection de celle à laquelle il entend donner suite.
Cette annonce vous est proposée par de NORAY Maxime - - NoRSAC: 834 718 777, Enregistré au Greffe du tribunal de commerce de Tours Les informations sur les risques auxquels ce bien est exposé sont disponibles sur le site Géorisques : www.georisques.gouv.fr
Voir plus

Référence: 7746
Bien en copropriété. Nombre de lots : 34. Charges de copropriété : 912 €.
Barème des honoraires
DPE
A
B
C
D
E
F
G
GES
A
B
C
D
E
F
G

Prêt immobilier

Vous souhaitez connaître votre capacité d’emprunt et trouver le meilleur crédit immobilier ?
Réaliser une simulation gratuite

Appartement à LES SABLES-D'OLONNE
Appartement à LES SABLES-D'OLONNE
Appartement à LES SABLES-D'OLONNE
Appartement à LES SABLES-D'OLONNE
Appartement à LES SABLES-D'OLONNE
Appartement à LES SABLES-D'OLONNE
Appartement à LES SABLES-D'OLONNE
Appartement à LES SABLES-D'OLONNE
Appartement à LES SABLES-D'OLONNE
Ce site est protégé par reCAPTCHA la Politique de confidentialité et les Conditions d’utilisation de Google s’appliquent.
Obtenir un prêt immobilier au meilleur taux ?

En poursuivant votre navigation sans modifier vos paramètres, vous acceptez l'utilisation de cookies susceptibles de réaliser des statistiques de visite. Cliquez ici pour plus d'informations