Appartement 101m² à bonneuil-sur-marne

— Bonneuil-Sur-Marne 94380 —
249 000 €
101 m²
4 pièces
balcon/terrasse

Iad France - Fatiha El Idrissi vous propose : ___ AV DE PARIS,
___ QUARTIER RECHERCHÉ DU PARC DU RANCY,
Appartement de type F4 à rafraichir offrant un potentiel incroyable idéale pour les investisseurs ou les amateurs de rénovation.
comprenant :
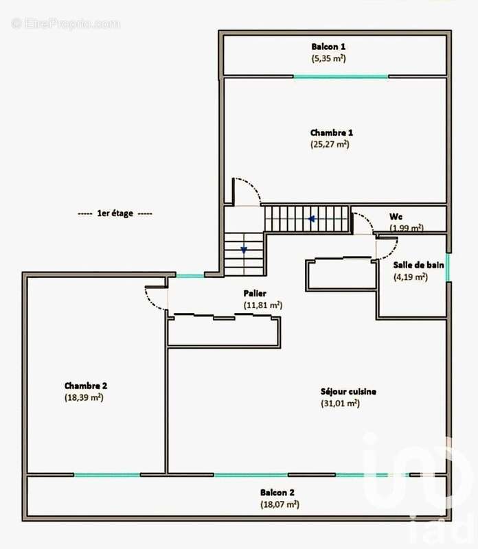
Au rez-de-chaussée : une entrée de 8 m²
A l'étage : un palier distribuant une 1ere chambre de 25 m² donnant sur balcon avec vue dégagée, une cuisine ouverte sur le séjour / salle a manger de 31 m² avec une terrasse de 18 m² SANS AUCUN VIS A VIS, une 2eme chambre de 18 m², un dégagement avec placards, une salle de bains avec fenêtre, et WC séparés.

___ PROCHE DE TOUTES COMMODITÉS, commerces, écoles, transports (métro L8 à 10min en bus ou 20min à pied).
___ Rafraichissement à prévoir.
___ EXPOSITION EST / OUEST.
___ DOUBLE VITRAGE.
___ TAXE FONCIERE : 1800 EUROS


La presente annonce immobiliere vise 1 lot situé dans une copropriété de 2 lots au total et ne faisant l'objet d'aucune procédure en cours citée à l'article L. 721-1 du code de la construction et de l'habitation. Montant moyen mensuel de charges déclaré par le vendeur : 0¤ par mois (soit 0 ¤ annuel). Honoraires d'agence à la charge du vendeur.
Information d'affichage énergétique sur ce bien : classe ENERGIE E indice 240 et classe CLIMAT E indice 52. Les informations sur les risques auxquels ce bien est exposé, y compris l'obligation légale de débroussaillement, sont disponibles sur le site Géorisques : http://www.georisques.gouv.fr.
La présente annonce immobilière a été rédigée sous la responsabilité éditoriale de Mme Fatiha El Idrissi mandataire indépendant en immobilier (sans détention de fonds), agent commercial de la SAS I@D France immatriculé au RSAC de CRETEIL sous le numéro 410 896 633, titulaire de la carte de démarchage immobilier pour le compte de la société I@D France SAS.
Informations LOI ALUR :
Soumis au régime de copropriété.
Nombre de lots : 2.
Honoraires charge vendeur. (gedeon_6727_31804150)
Voir plus

Référence: 1832418
Bien en copropriété. Nombre de lots : 2.
Honoraires à la charge du vendeur.
DPE
A
B
C
D
E
F
G
GES
A
B
C
D
E
F
G

Prêt immobilier

Vous souhaitez connaître votre capacité d’emprunt et trouver le meilleur crédit immobilier ?
Réaliser une simulation gratuite

Photo 1 - Appartement à BONNEUIL-SUR-MARNE
Photo 1
Photo 2 - Appartement à BONNEUIL-SUR-MARNE
Photo 2
Photo 3 - Appartement à BONNEUIL-SUR-MARNE
Photo 3
Photo 4 - Appartement à BONNEUIL-SUR-MARNE
Photo 4
Photo 5 - Appartement à BONNEUIL-SUR-MARNE
Photo 5
Photo 6 - Appartement à BONNEUIL-SUR-MARNE
Photo 6
Photo 7 - Appartement à BONNEUIL-SUR-MARNE
Photo 7
Photo 8 - Appartement à BONNEUIL-SUR-MARNE
Photo 8
Photo 9 - Appartement à BONNEUIL-SUR-MARNE
Photo 9
Ce site est protégé par reCAPTCHA la Politique de confidentialité et les Conditions d’utilisation de Google s’appliquent.
Obtenir un prêt immobilier au meilleur taux ?

En poursuivant votre navigation sans modifier vos paramètres, vous acceptez l'utilisation de cookies susceptibles de réaliser des statistiques de visite. Cliquez ici pour plus d'informations