Bénéficiez des services de nos partenaires locaux soigneusement sélectionnés
pour vous accompagner dans votre parcours d'achat immobilier

Charmante maison de 95 m2 avec garage et jardin de ville exposé sud - rue mac carthy, bordeaux

— Bordeaux 33200 —
375 000 €
96 m² / 153 m²
5 pièces
parkingbalcon/terrassejardin

Nos partenaires locaux
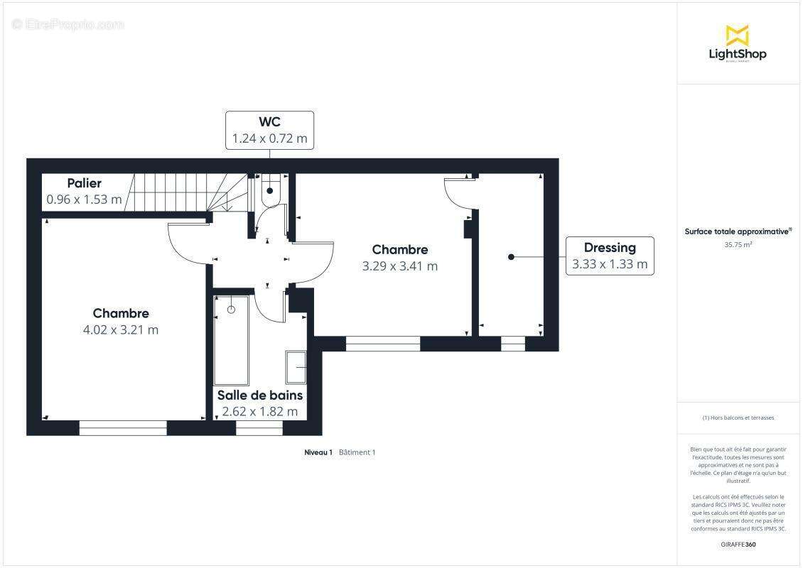
Hosman vous propose cette maison de 95 m² habitable sur une parcelle de 150m², située Rue Mac Carthy à Bordeaux. Ce bien traversant, avec son charmant jardin exposé sud de 40 m², dispose également d'une terrasse de 20 m² et d'un garage. En complément, une petite cave de 8m2.

Planifiez facilement votre visite en choisissant le créneau qui vous convient depuis le site d'Hosman.

La maison se compose comme suit :
Une entrée avec placard, suivie d'une salle à manger avec parquet chaleureux, et d'un salon carrelé. La cuisine séparée offre un espace repas idéal pour les repas en famille.
À l'étage, deux chambres, dont une avec grand dressing, et une grande salle de douche lumineuse avec fenêtre et emplacement pour machine à laver. Les toilettes sont séparées.

La maison est équipée de menuiseries extérieures en PVC avec verre anti-effraction et dispose d'une chaudière individuelle gaz assurant le chauffage et l'eau chaude.

La taxe foncière annuelle est de 1 800 €.

Cette maison bénéficie d'un environnement agréable, proche de toutes commodités :
À quelques pas de l'École élémentaire Raymond Poincarré et du Parc Bourran pour des moments de détente. À 400 mètres se trouvent les restaurants et commerces du quartier. accès facile aux transports en commun avec l'arrêt de bus le plus proche à 3 minutes à pied (ligne 1).

Hosman s'efforce de réinventer l'agence immobilière en offrant un service innovant et transparent aux acheteurs et aux vendeurs. Nos frais d'agence sont de 9 900 euros fixes à la charge du vendeur.

Si vous êtes un professionnel de l'immobilier (agent, mandataire ou chasseur immobilier), sachez que toutes les annonces Hosman sont ouvertes à la collaboration. N'hésitez pas à nous contacter pour en discuter.
Voir plus

Référence: b71ed1
Honoraires à la charge du vendeur.
DPE
A
B
C
D
E
F
G
GES
A
B
C
D
E
F
G

Prêt immobilier

Vous souhaitez connaître votre capacité d’emprunt et trouver le meilleur crédit immobilier ?
Réaliser une simulation gratuite

Maison à BORDEAUX
Maison à BORDEAUX
Maison à BORDEAUX
Maison à BORDEAUX
Maison à BORDEAUX
Maison à BORDEAUX
Maison à BORDEAUX
Maison à BORDEAUX
Maison à BORDEAUX
Maison à BORDEAUX
Maison à BORDEAUX
Maison à BORDEAUX
Maison à BORDEAUX
Maison à BORDEAUX
Maison à BORDEAUX
Maison à BORDEAUX
Maison à BORDEAUX
Maison à BORDEAUX
Maison à BORDEAUX
Maison à BORDEAUX
Maison à BORDEAUX
Maison à BORDEAUX
Maison à BORDEAUX
Maison à BORDEAUX
Ce site est protégé par reCAPTCHA la Politique de confidentialité et les Conditions d’utilisation de Google s’appliquent.
Obtenir un prêt immobilier au meilleur taux ?

En poursuivant votre navigation sans modifier vos paramètres, vous acceptez l'utilisation de cookies susceptibles de réaliser des statistiques de visite. Cliquez ici pour plus d'informations