Bénéficiez des services de nos partenaires locaux soigneusement sélectionnés
pour vous accompagner dans votre parcours d'achat immobilier

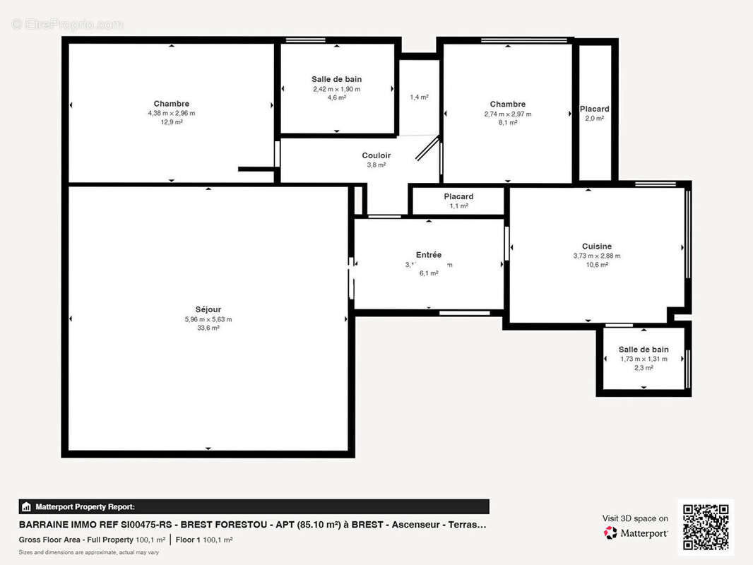
BREST FORESTOU - VENTE d'un appartement T4 de 85.10 m² - Ascenseur - Terrasse 14.4 m² - Vue mer - Garage - Parking

— Brest 29200 —
274 000 €
85 m²
4 pièces
parkingbalcon/terrasseascenseur

Nos partenaires locaux
BREST FORESTOU - Ref SI00475-RS Proche du centre dans un secteur résidentiel, nous sommes heureux de vous présenter à vendre à BREST (29200), cet appartement de 4 pièces au calme exposé sud, de 85.10 m². Il s'agence comme suit : un hall avec placard et un vaste séjour double de 32 m². Son intérieur dispose également de deux chambres de 9 m² et 12 m², d'une cuisine aménagée équipée et d'une arrière cuisine pour votre buanderie. Il inclut une salle d'eau avec douche et fenêtre. Toilettes séparées. Volets roulants, des fenêtres en aluminium double vitrage et la fibre dans l'immeuble. Cet appartement comporte une terrasse de 14 m². Pour une solution de rangement complémentaire, l'appartement bénéficie d'une cave de 4.2 m². Avec ascenseur, Le bâtiment a été construit en 2006. Il est en très bon état général malgré un extérieur attendant d'être rafraîchi. Tout est prévu pour votre véhicule : parmi les emplacements disponibles dans l'immeuble, un garage au sous-sol, une place de parking extérieure sont réservés pour cet appartement. La sécurité du bâtiment est assurée par un vigik et un interphone avec visiophone. Dans un quartier calme, cet appartement est proche de toutes commodités : l'appartement se trouve à moins d'une minute des commerces et à deux minutes des écoles. Pour les tout-petits, les environs proposent deux crèches à moins de 10 minutes à pied. Un arrêt de bus se trouve à trois minutes du bien. Il y a également le tram à 10 minutes. L'aéroport Brest-Bretagne est accessible à 8 km. Pour vos loisirs, vous pourrez compter sur deux cinémas tout comme sur un tennis à proximité du logement. On trouve aussi des restaurants, des commerces, quatre boulangeries, trois supermarchés, des épiceries et un bureau de poste. Si vous souhaitez acheter, il est important de prendre en considération le bilan énergétique du bien. La classe énergétique est notée C pour une consommation énergétique de 135 kWh/m2/an. La classe climatique est, quant à elle, notée A, ce qui représente de très faibles émissions de gaz à effet de serre (de l'ordre de 5 Kg CO2/m²/an). Le montant des dépenses annuelles d'énergie pour un usage standard est estimé entre 1180 euros et 1610 euros. Les informations sur les risques auxquels ce bien est exposé sont disponibles sur le site Géorisques : www.georisques.gouv.fr. Profitez de la visite virtuelle de cet appartement pour le découvrir comme si vous y étiez. Contactez notre agence immobilière Agence Barraine IMMO Brest - Siam pour obtenir plus de renseignements sur cet appartement en vente à BREST. (5.38 % honoraires TTC à la charge de l'acquéreur.) Copropriété de 144 lots - dont 48 lots habitation. Charges annuelles : 1874.84 euros.
Voir plus

Référence: SI00475-RS
Bien en copropriété. Nombre de lots : 144. Charges de copropriété : 1874 €.
Honoraires d'agence de 5.38% à la charge de l'acquéreur
Barème des honoraires
DPE
A
B
C
D
E
F
G
GES
A
B
C
D
E
F
G
Appartement à BREST
Appartement à BREST
Appartement à BREST
Appartement à BREST
Appartement à BREST
Appartement à BREST
Appartement à BREST
Appartement à BREST
Appartement à BREST
Appartement à BREST
Appartement à BREST
Appartement à BREST
Appartement à BREST
Appartement à BREST
Appartement à BREST
Appartement à BREST
Appartement à BREST
Appartement à BREST
Géorisques

Les informations sur les risques auxquels ce bien est exposé sont disponibles sur le site Géorisques : www.georisques.gouv.fr

Ce site est protégé par hCaptcha Politique de confidentialité et Conditions d’utilisation s’appliquent.

En poursuivant votre navigation sans modifier vos paramètres, vous acceptez l'utilisation de cookies susceptibles de réaliser des statistiques de visite. Cliquez ici pour plus d'informations