Bénéficiez des services de nos partenaires locaux soigneusement sélectionnés
pour vous accompagner dans votre parcours d'achat immobilier

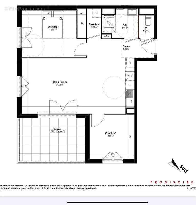
Appartement neuf antibes - dernier étage - calme - piscine

— Antibes 06600 —
435 000 €
63 m²
3 pièces
parkingbalcon/terrasseascenseuraccès handicapé

Nos partenaires locaux
Du 25/02/2026 au 25/04/2026
OFFRE T3
Pour l'acquisition d'un T3 nous appliquons une remise de 15 000 € sur le prix de vente


CONSTRUCTION EN COURS !

À Antibes, au cœur d’une pinède, découvrez une résidence neuve, close et sécurisée avec piscine, offrant un cadre de vie calme et privilégié. L’accès piétons est contrôlé par digicode, vidéophone et badge. Idéalement située à proximité des axes autoroutiers et de Sophia Antipolis.

Cet appartement 3 pièces de 64 m², situé en dernier étage, bénéficie de 2 chambres et d’agencements harmonieux, conçus selon les standards du confort contemporain.

Les prestations comprennent des volets roulants électriques à commande centralisée et une porte palière isoblanquée avec serrure de sûreté 3 pênes.

Une cave complète cet appartement. Vous pouvez également trouver des locaux à vélos dans la résidence. De nombreux parkings sécurisés en sous-sol sont disponibles à la vente.

À quelques minutes des plages et proche des commerces et commodités d’Antibes, ce bien offre un équilibre idéal entre sérénité et qualité de vie sur la Côte d’Azur.

La résidence propose également d’autres typologies, du studio au T4 en villa sur le toit avec solarium, avec vues mer ou verdure. N’hésitez pas à pus contacter pour plus d’informations.

La livraison est prévue pour le 1er trimestre 2027
Voir plus

Référence: 86659162
Barème des honoraires
Appartement à ANTIBES
Appartement à ANTIBES
Appartement à ANTIBES
Appartement à ANTIBES
Appartement à ANTIBES
Appartement à ANTIBES
Appartement à ANTIBES
Appartement à ANTIBES
Appartement à ANTIBES
Appartement à ANTIBES
Appartement à ANTIBES
Géorisques

Les informations sur les risques auxquels ce bien est exposé sont disponibles sur le site Géorisques : www.georisques.gouv.fr

Ce site est protégé par hCaptcha Politique de confidentialité et Conditions d’utilisation s’appliquent.

En poursuivant votre navigation sans modifier vos paramètres, vous acceptez l'utilisation de cookies susceptibles de réaliser des statistiques de visite. Cliquez ici pour plus d'informations