Bénéficiez des services de nos partenaires locaux soigneusement sélectionnés
pour vous accompagner dans votre parcours d'achat immobilier

Appartement 86 m² à Benerville-Sur-Mer

— Benerville-Sur-Mer 14910 —
650 900 €
86 m²
4 pièces
parkingbalcon/terrasseascenseuraccès handicapé

Nos partenaires locaux
L'agence 'MON BIEN A LA MER', spécialiste de l'immobilier neuf en Bord de Mer, sélectionne auprès des promoteurs les meilleures opérations aux mêmes prix, sans commission d'agence. Bénéficiez de notre expertise indépendante, et de nos services (aide aux plans, maquette, drone, visite virtuelles). Nous vous présentons ce bien :

Superbe emplacement pour cette petite résidence à BENERVILLE SUR MER
5 min à pied de la plage des Ammonites, au calme.
6 min en voiture de la gare de DEAUVILLE.

Cette résidence à taille humaine de 20 lots vous offre de belles prestations et s'insère harmonieusement dans son environnement, à deux pas de l'hippodrome de CLAIREFONTAINE.
Ascenseur. Frais de notaire réduits. Livraison début 2028.

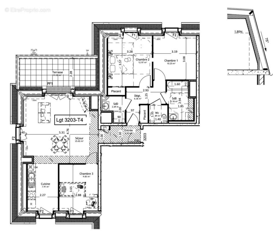
Cet appartement T4 de 86m2 habitables est situé au dernier étage.
Le séjour de 33m2 offre une exposition et terrasse au sud ouest ; traversant, il se prolonge sur un coin cuisine.
3 Chambres de 13-10-10m2 le complètent.
Ainsi qu'une salle d'eau, une salle de bains, wc suspendus séparés, placards.
Box inclus.

Nous consulter.

Honoraires à la charge du vendeur. Non soumis au DPE. Les informations sur les risques auxquels ce bien est exposé sont disponibles sur le site Géorisques : georisques.gouv.fr.

Votre conseiller MON BIEN A LA MER : Gérant - .fr MON BIEN A LA MER
Carte T CPI 22[Coordonnées masquées]25 040
RCP ACM IARD B1 7025278
Voir plus

Référence: VA6330-BIENALAMER
Honoraires à la charge du vendeur.
Barème des honoraires
Appartement à BENERVILLE-SUR-MER
Appartement à BENERVILLE-SUR-MER
Appartement à BENERVILLE-SUR-MER
Appartement à BENERVILLE-SUR-MER
Appartement à BENERVILLE-SUR-MER
Appartement à BENERVILLE-SUR-MER
Appartement à BENERVILLE-SUR-MER
Appartement à BENERVILLE-SUR-MER
Appartement à BENERVILLE-SUR-MER
Géorisques

Les informations sur les risques auxquels ce bien est exposé sont disponibles sur le site Géorisques : www.georisques.gouv.fr

Ce site est protégé par hCaptcha Politique de confidentialité et Conditions d’utilisation s’appliquent.

En poursuivant votre navigation sans modifier vos paramètres, vous acceptez l'utilisation de cookies susceptibles de réaliser des statistiques de visite. Cliquez ici pour plus d'informations