Maison 83m² à gap

— Gap 05000 —
324 000 €
83 m² / 480 m²
4 pièces
jardin

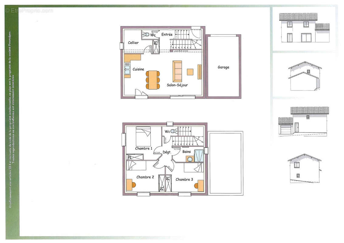
Découvrez votre future maison jumelée par le garage, conçue pour allier confort et modernité, en collaboration avec nos partenaires de confiance. Cette maison de plain-pied vous offre un cadre de vie idéal, avec un salon-séjour spacieux et lumineux.
Elle se compose de 3 chambres confortables, la salle d'eau moderne est conçue pour votre bien-être.
Profitez d'un chauffage au sol par pompe à chaleur, garantissant une chaleur douce et homogène tout en respectant les normes de la réglementation environnementale RE2020. Cette maison est conçue pour être éco-responsable, vous permettant de réaliser des économies d'énergie tout en préservant l'environnement.
Ne manquez pas cette opportunité de construire la maison de vos rêves dans un cadre paisible et agréable. Contactez-nous dès aujourd'hui pour plus d'informations et pour discuter de votre projet !
Honoraires d'agence charge acquéreur = avantage fiscal (pas de frais de notaire sur nos honoraires).
Voir plus

Référence: 4036
Maison à GAP
Maison à GAP
Maison à GAP
Maison à GAP
Géorisques

Les informations sur les risques auxquels ce bien est exposé sont disponibles sur le site Géorisques : www.georisques.gouv.fr

Ce site est protégé par hCaptcha Politique de confidentialité et Conditions d’utilisation s’appliquent.

En poursuivant votre navigation sans modifier vos paramètres, vous acceptez l'utilisation de cookies susceptibles de réaliser des statistiques de visite. Cliquez ici pour plus d'informations