Appartement 29 m² à Guidel

— Guidel 56520 —
122 500 €
29 m²
1 pièce
ascenseur

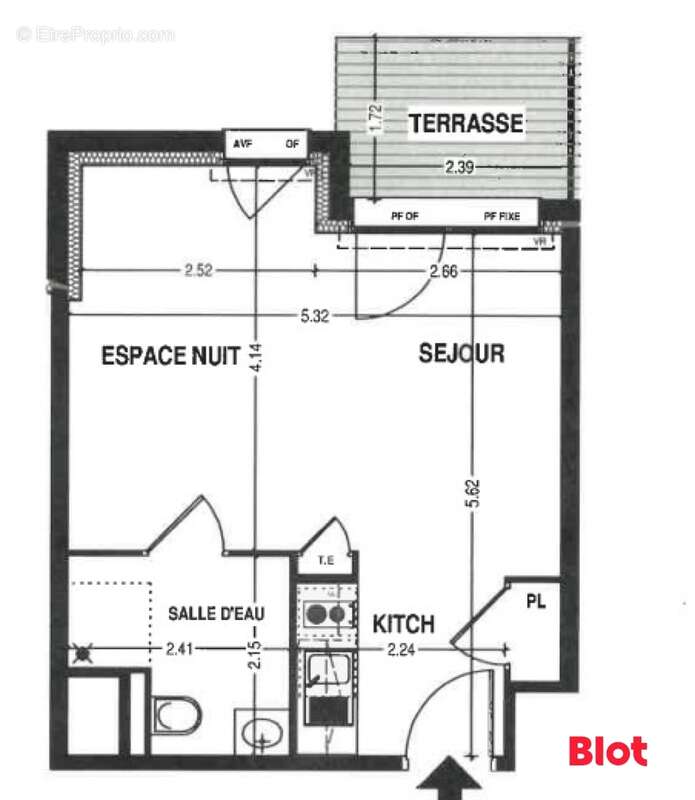
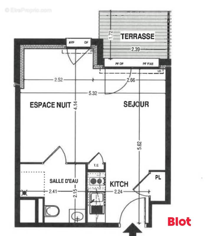
EXCLUSIVITÉ - À VENDRE - BLOT IMMOBILIER LORIENT - GUIDEL - APPARTEMENT 1 PIÈCE 29,75 m² - INVESTISSEUR Situé au sein de la résidence seniors ROZ AVEL, reconnue pour son standing et sa situation privilégiée à proximité immédiate du centre-ville de Guidel, cet appartement 1 pièce de 29,75 m² saura séduire les investisseurs. Ce T1 de 29,75 m², en rez-de-chaussée et en parfait état, offre : une entrée avec cuisine aménagée et rangements, une pièce de vie lumineuse avec accès à une terrasse, une salle d'eau avec WC. ? Produit idéal pour un investisseur, dans une résidence de qualité, calme et sécurisée. Revenues locatifs : 4 656EUR par ans, revalorisé chaque année. Charges de copropriété annuelles : 246.06EUR Nombre de lots dans la copropriété : 151 dont 107 lots d'habitation. Réf. : 557CA CLASSE ÉNERGIE : B - CLASSE CLIMAT : A Les informations sur les risques naturels, miniers, ou technologiques, auxquels ce bien est exposé, sont disponibles sur le site www.georisques.gouv.fr Ce bien vous est présenté par l'agence BLOT IMMOBILIER LORIENT - 39 Rue de la Villeneuve 56100 LORIENT - Tél : [Coordonnées masquées] *Au prix de 122 500 euros FAI dont 7 500 TTC d'honoraires à la charge de l'acquéreur. Prix Net Vendeur : 115 000 euros.
Voir plus

Référence: 557CA
Bien en copropriété. Nombre de lots : 151. Charges de copropriété : 252 €.
Honoraires d'agence de 6.52% à la charge de l'acquéreur
Barème des honoraires
DPE
A
B
C
D
E
F
G
GES
A
B
C
D
E
F
G
Appartement à GUIDEL
Appartement à GUIDEL
Appartement à GUIDEL
Appartement à GUIDEL
Appartement à GUIDEL
Appartement à GUIDEL
Appartement à GUIDEL
Appartement à GUIDEL
Appartement à GUIDEL
Appartement à GUIDEL
Géorisques

Les informations sur les risques auxquels ce bien est exposé sont disponibles sur le site Géorisques : www.georisques.gouv.fr

Ce site est protégé par hCaptcha Politique de confidentialité et Conditions d’utilisation s’appliquent.

En poursuivant votre navigation sans modifier vos paramètres, vous acceptez l'utilisation de cookies susceptibles de réaliser des statistiques de visite. Cliquez ici pour plus d'informations