Bénéficiez des services de nos partenaires locaux soigneusement sélectionnés
pour vous accompagner dans votre parcours d'achat immobilier

Résidence Neuve au CANNET

— Le Cannet 06110 —
260 000 €
ascenseurpiscineaccès handicapé

Nos partenaires locaux
Petite résidence intimiste située au Cannet, composée de moins de 20 logements, exclusivement destinés à la vente.

Résidence entièrement clôturée et sécurisée, avec piscine, sur seulement deux étages et équipée d’un ascenseur.

Elle dispose de stationnements extérieurs ainsi que de places en sous-sol.

Les travaux sont en cours, permettant une actabilité immédiate.

La livraison est prévue au deuxième trimestre 2027.

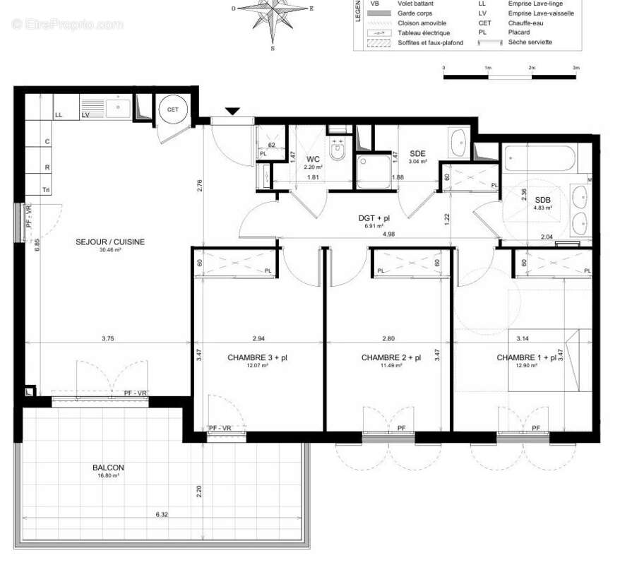
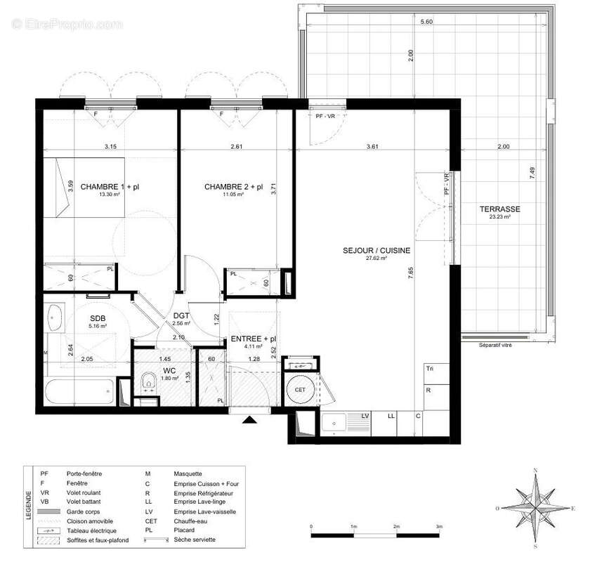
Tous les logements bénéficient d’un extérieur, balcon ou terrasse.

Dernières opportunités disponibles :

Grand 2 pièces en dernier étage, d’une surface habitable de plus de 45 m², avec plus de 10 m² d’extérieur, à partir de 260 000 €, hors stationnement.

3 pièces à partir de 65 m², avec un minimum de 20 m² d’extérieur.
Il reste une disponibilité en dernier étage,
A partir de 360 000 €, hors stationnement.

Dernier 4 pièces en dernier étage, d’une surface de plus de 80 m², avec plus de 15 m² de terrasse, à partir de 495 000 €, hors stationnement.

parking S/sol ; A partir de 30 000€

À noter : les frais de notaire sont réduits dans le neuf, environ 2,5 %, contre 7 % dans l’ancien.
Voir plus

Référence: 86517847
Barème des honoraires
Appartement à LE CANNET
Appartement à LE CANNET
Appartement à LE CANNET
Appartement à LE CANNET
Appartement à LE CANNET
Appartement à LE CANNET
Appartement à LE CANNET
Appartement à LE CANNET
Appartement à LE CANNET
Appartement à LE CANNET
Géorisques

Les informations sur les risques auxquels ce bien est exposé sont disponibles sur le site Géorisques : www.georisques.gouv.fr

Ce site est protégé par hCaptcha Politique de confidentialité et Conditions d’utilisation s’appliquent.

En poursuivant votre navigation sans modifier vos paramètres, vous acceptez l'utilisation de cookies susceptibles de réaliser des statistiques de visite. Cliquez ici pour plus d'informations