Bénéficiez des services de nos partenaires locaux soigneusement sélectionnés
pour vous accompagner dans votre parcours d'achat immobilier

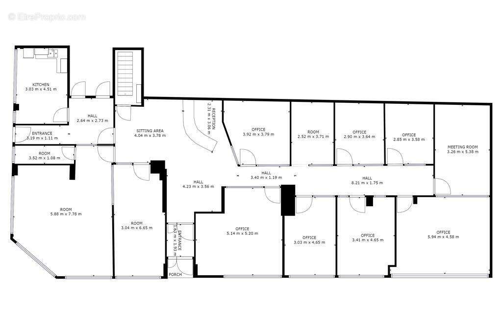
A deux pas de la Gare de Vincennes, bureaux en RDC avec double accès ERP PMR

— Vincennes 94300 —
2 500 000 €
370 m²

Nos partenaires locaux
A deux pas de la Gare de Vincennes, à vendre bureaux en bon état avec accès indépendant sur rue.

CARACTERISTIQUES DE L'OFFRE

RDC (288 m²)

Une entrée

10 bureaux décloisonnables

Salle de réunion

Local reprographie

Cuisine

2 sanitaires dont 1 PMR

Sous sol (220 m² pondérés - en accès direct)

Grand local archives

Local technique/informatique

5 à 7 places de parking

Accès PMR et ERP possibles

Local d'angle avec grande visibilité

CONDITIONS FINANCIERES

Prix net vendeur : 2 500 000 € HD

Honoraires : 5% HT du prix net vendeur en sus à la charge de l'acquéreur

Disponible : Immédiate

 
Voir plus

Référence: 10200992
Commerce à VINCENNES
Commerce à VINCENNES
Commerce à VINCENNES
Commerce à VINCENNES
Commerce à VINCENNES
Commerce à VINCENNES
Commerce à VINCENNES
Commerce à VINCENNES
Commerce à VINCENNES
Géorisques

Les informations sur les risques auxquels ce bien est exposé sont disponibles sur le site Géorisques : www.georisques.gouv.fr

Ce site est protégé par hCaptcha Politique de confidentialité et Conditions d’utilisation s’appliquent.

En poursuivant votre navigation sans modifier vos paramètres, vous acceptez l'utilisation de cookies susceptibles de réaliser des statistiques de visite. Cliquez ici pour plus d'informations