Bénéficiez des services de nos partenaires locaux soigneusement sélectionnés
pour vous accompagner dans votre parcours d'achat immobilier

Exclusivité saint-marc maison 150 m² habitables et 200 m² de surface utiles

— Brest 29200 —
279 000 €
150 m² / 291 m²
8 pièces
parkingbalcon/terrassejardin

Nos partenaires locaux
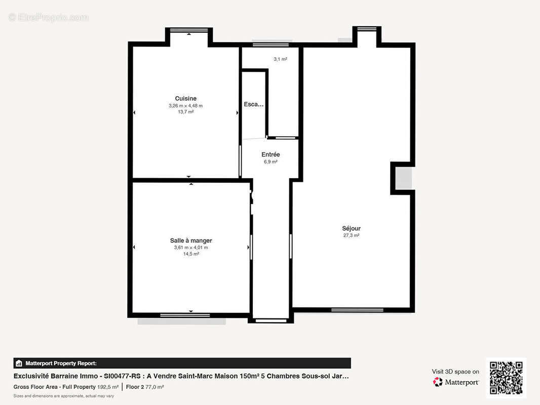
Brest - LE GUELMEUR - Ref : SI00477-RS Découvrez cette maison spacieuse de 150 m² habitables, située dans le secteur prisé du Guelmeur - Saint-Marc à Brest. Cette propriété dispose de 8 pièces, dont 5 chambres et un bureau, Terrain de 291 m². La maison, construite en 1938 a été surélevée en 1970, elle offre un potentiel certain et attend vos idées de décorations pour une seconde jeunesse. A l'intérieur, vous trouverez une cuisine aménagée de 12.91 m² qui profite du soleil couchant, un séjour de 27,41 m² à double exposition Sud/Est et Nord/Ouest, une salle à manger de 13.97 m² qui pourrait être ouverte sur la cuisine et vers le séjour par le hall. Ainsi, vous pourriez profiter après travaux, d'une pièce de vie de 61.11 m² en faisant communiquer les pièces. Au deuxième étage, trois chambres, un bureau et une salle d'eau aménagée. WC au premier et au second. Au niveau du jardin, deux grandes chambres de près de 14 m². Le chauffage est assuré par des radiateurs alimentés au gaz de ville, Chaudière au gaz de 2014. Un insert dans la cheminée ajoute une touche chaleureuse à son ambiance. A l'extérieur, la maison est dotée de fenêtres en PVC double vitrage et de volets roulants. Le garage fermé, le parking extérieur et la cave offrent un espace de rangement appréciable. Idéalement située, cette maison se trouve à seulement 10 minutes en tramway des commodités, avec des commerces à moins d'un kilomètre et plusieurs écoles à proximité, dont l'École Diwan Guelmer et l'École primaire publique Le Forestou. Les amoureux de la nature apprécieront la proximité des parcs et la mer, accessible en 3 km. Ne manquez pas cette opportunité rare sur le marché ! Contactez l'Agence Barraine IMMO Brest - Siam pour plus d'informations. (6.49 % honoraires TTC à la charge de l'acquéreur.)
Voir plus

Référence: SI00477-RS
Honoraires d'agence de 6.49% à la charge de l'acquéreur
Barème des honoraires
DPE
A
B
C
D
E
F
G
GES
A
B
C
D
E
F
G
Maison à BREST
Maison à BREST
Maison à BREST
Maison à BREST
Maison à BREST
Maison à BREST
Maison à BREST
Maison à BREST
Maison à BREST
Maison à BREST
Maison à BREST
Maison à BREST
Maison à BREST
Maison à BREST
Maison à BREST
Maison à BREST
Maison à BREST
Maison à BREST
Maison à BREST
Maison à BREST
Géorisques

Les informations sur les risques auxquels ce bien est exposé sont disponibles sur le site Géorisques : www.georisques.gouv.fr

Ce site est protégé par hCaptcha Politique de confidentialité et Conditions d’utilisation s’appliquent.

En poursuivant votre navigation sans modifier vos paramètres, vous acceptez l'utilisation de cookies susceptibles de réaliser des statistiques de visite. Cliquez ici pour plus d'informations