Bénéficiez des services de nos partenaires locaux soigneusement sélectionnés
pour vous accompagner dans votre parcours d'achat immobilier

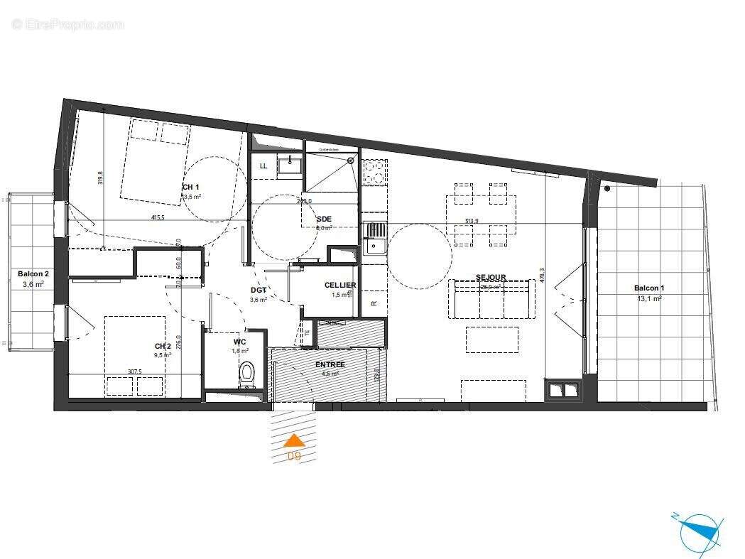
T3 neuf avec 2 terrasses et parking

— Millau 12100 —
193 700 €
67 m²
3 pièces

Nos partenaires locaux
Devenez propriétaire de votre T3 à MILLAU avec AVEYRON HABITAT

La résidence « LES TERRASSES DU LARZAC » est idéalement située à proximité des écoles et des commerces

Un logement adapté à vos besoins :
- Logement de 67m² avec 2 terrasses
- Deuxième étage
- Ascenseur
- Parking sous terrain privatif
- Chauffage via réseau de chaleur du quartier
- Local à vélo
- Accès sécurisé

Pourquoi acheter en location-accession avec AVEYRON HABITAT ?
- Vous habitez votre futur logement avant de l'acheter et vous payez quand vous êtes prêt
- Exonération de la taxe foncière pendant 15 ans ce qui représente un gain d'environ 9 000 €
- Les frais de notaire sont réduits à 3,5 % soit 7 000 € de moins qu'un bien ancien.
- Vous bénéficiez d'une TVA à 5,5% au lieu de 20% soit 26 000€ d'économisés
- Pas de frais d'agence
- Vous pouvez profiter d'une subvention de 15 000€ si votre entreprise cotise au 1% logement

Avec un total d'économie de presque 57 000€, la location-accession est un vrai coup de pouce pour devenir propriétaire sereinement.

Nous sommes à votre disposition pour :
- Vérifier votre éligibilité au PSLA
- Vous présenter les plans et les prix détaillés
- Vous accompagner dans votre projet de A à Z

Contactez-nous dès aujourd'hui pour demander votre rendez-vous personnalisé.
Voir plus

Référence: MILLAU-BALCONLARZAC-T3C109
Bien en copropriété.
Appartement à MILLAU
Appartement à MILLAU
Appartement à MILLAU
Appartement à MILLAU
Appartement à MILLAU
Appartement à MILLAU
Géorisques

Les informations sur les risques auxquels ce bien est exposé sont disponibles sur le site Géorisques : www.georisques.gouv.fr

Ce site est protégé par hCaptcha Politique de confidentialité et Conditions d’utilisation s’appliquent.

En poursuivant votre navigation sans modifier vos paramètres, vous acceptez l'utilisation de cookies susceptibles de réaliser des statistiques de visite. Cliquez ici pour plus d'informations