Bénéficiez des services de nos partenaires locaux soigneusement sélectionnés
pour vous accompagner dans votre parcours d'achat immobilier

Terrain 2261 m² à Douvres-La-Delivrande

— Douvres-La-Delivrande 14440 —
106 701 €
2 261 m²

Nos partenaires locaux
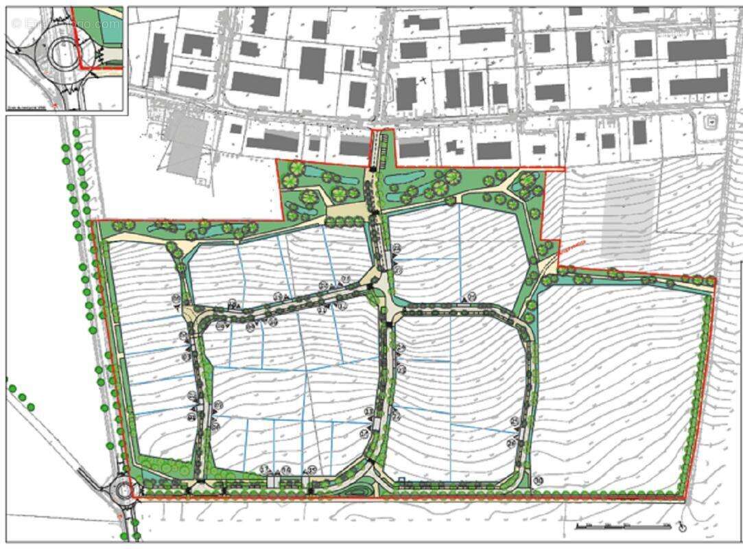
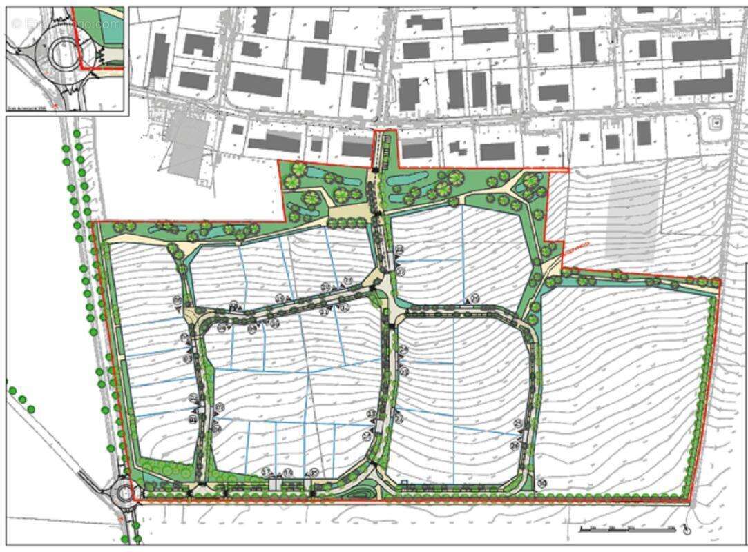
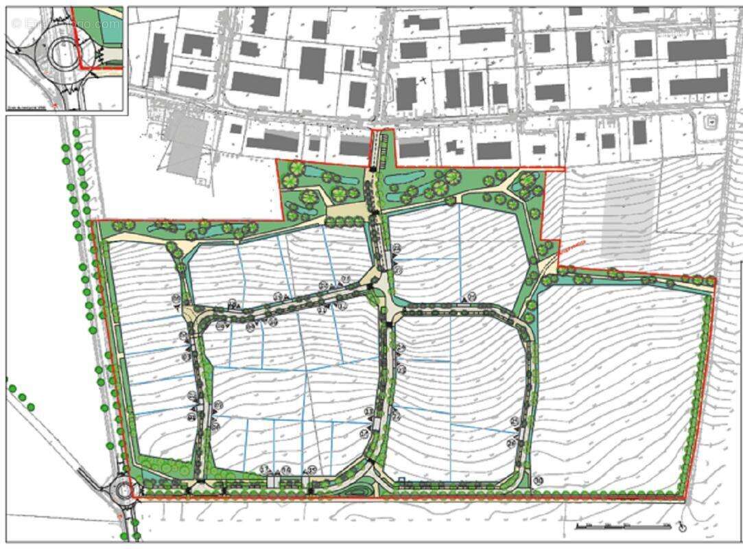
A vendre terrain d'activité à Douvres-la-Délivrande

Un positionnement stratégique,
Proche des grands axes,
Aménagement paysager qualitatif,
Parc labélisé RSE Normandie ReSponsablE

Parcelles de 1 773 m² à 5 100 m²

Prix de 76 800 à 229 500 euros HT

LOT N°4 :
superficie : 2261 m²
Prix : 106 701 euros HT

Positionnée au sud de la zone d'activités de la Fossette existante, l'extension « Parc d'activités Cœur de Nacre » s'étend sur 21 hectares.

Elle vise à développer l'activité économique et à encourager la création d'emplois sur le territoire de la Communauté de communes.

“Les informations sur les risques auxquels ce bien est exposé sont disponibles sur le site Géorisques : www.georisques.gouv.fr”.
Voir plus

Référence: 3520-4
Honoraires à la charge du vendeur.
Terrain à DOUVRES-LA-DELIVRANDE
Terrain à DOUVRES-LA-DELIVRANDE
Terrain à DOUVRES-LA-DELIVRANDE
Terrain à DOUVRES-LA-DELIVRANDE
Terrain à DOUVRES-LA-DELIVRANDE
Terrain à DOUVRES-LA-DELIVRANDE
Terrain à DOUVRES-LA-DELIVRANDE
Terrain à DOUVRES-LA-DELIVRANDE
Terrain à DOUVRES-LA-DELIVRANDE
Terrain à DOUVRES-LA-DELIVRANDE
Terrain à DOUVRES-LA-DELIVRANDE
Terrain à DOUVRES-LA-DELIVRANDE
Terrain à DOUVRES-LA-DELIVRANDE
Terrain à DOUVRES-LA-DELIVRANDE
Terrain à DOUVRES-LA-DELIVRANDE
Terrain à DOUVRES-LA-DELIVRANDE
Géorisques

Les informations sur les risques auxquels ce bien est exposé sont disponibles sur le site Géorisques : www.georisques.gouv.fr

Ce site est protégé par hCaptcha Politique de confidentialité et Conditions d’utilisation s’appliquent.