Bénéficiez des services de nos partenaires locaux soigneusement sélectionnés
pour vous accompagner dans votre parcours d'achat immobilier

Maison de ville à rénover en plein centre de Brioude fort potentiel d’aménagement

— Brioude 43100 —
60 000 €
112 m²
4 pièces

Nos partenaires locaux
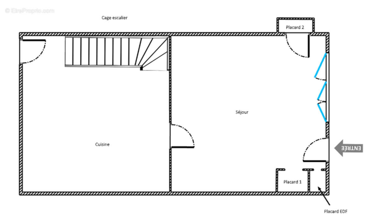
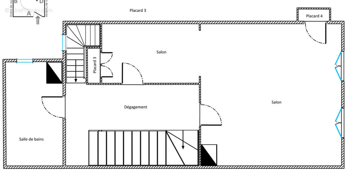
Située en plein centre-ville de Brioude, à proximité immédiate des commerces et des commodités, cette maison à rénover offre un fort potentiel pour un projet commercial ou un usage mixte habitation et activité professionnelle.
Édifiée sur plusieurs niveaux, elle développe une surface d’environ 112 m2, à redéfinir selon les aménagements envisagés, laissant une grande liberté d’organisation des espaces.
Des travaux sont à prévoir, notamment le remplacement de la chaudière au gaz de ville, la rénovation des huisseries ainsi que la mise aux normes de l’installation électrique. La toiture a été refaite récemment, constituant un point rassurant dans le cadre du projet de rénovation.
Grâce à sa localisation centrale et à la modularité de ses volumes, ce bien représente une réelle opportunité pour l’installation d’une activité professionnelle, la création de bureaux ou un projet d’investissement avec valorisation à la clé.
contact Sandy o760356681
Cette annonce vous est proposée par BERNARD SANDY - - NoRSAC: 888 824 125, Enregistré au Greffe du tribunal de commerce de brioude Les informations sur les risques auxquels le bien est exposé sont disponibles sur le site Géorisques : www.georisques.gouv.fr
Voir plus

Référence: 585
Honoraires à la charge du vendeur.
Barème des honoraires
DPE
A
B
C
D
E
F
G
GES
A
B
C
D
E
F
G
Maison à BRIOUDE
Maison à BRIOUDE
Maison à BRIOUDE
Maison à BRIOUDE
Maison à BRIOUDE
Maison à BRIOUDE
Maison à BRIOUDE
Maison à BRIOUDE
Maison à BRIOUDE
Maison à BRIOUDE
Maison à BRIOUDE
Maison à BRIOUDE
Maison à BRIOUDE
Maison à BRIOUDE
Maison à BRIOUDE
Maison à BRIOUDE
Maison à BRIOUDE
Géorisques

Les informations sur les risques auxquels ce bien est exposé sont disponibles sur le site Géorisques : www.georisques.gouv.fr

Ce site est protégé par hCaptcha Politique de confidentialité et Conditions d’utilisation s’appliquent.

En poursuivant votre navigation sans modifier vos paramètres, vous acceptez l'utilisation de cookies susceptibles de réaliser des statistiques de visite. Cliquez ici pour plus d'informations