Très belle villa standing piscine

— San-Nicolao 20230 —
680 000 €
256 m² / 1 943 m²
8 pièces
parkingbalcon/terrassejardinpiscine

Moriani plage, exclusivité de vente.

Belle maison de campagne, composée de deux logements indépendants, terrasses, garage et piscine.

Le rez-de-jardin est composée d'une belle terrasse coté entrée de 17 m², un couloir, une cuisine équipée, un séjour/salon et sa terrasse couverte de 26 m², trois chambres, une buanderie, un
wc et une salle de bain.

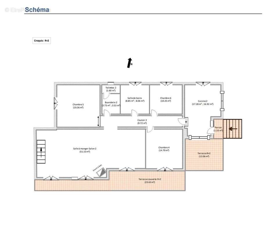
A l'étage, un hall d'entrée coté cuisine, une terrasse couverte, un vaste salon/séjour cheminée et sa terrasse couverte de 36 m², trois chambres, une salle de bain, un wc et une
buanderie.
Une piscine béton avec terrasse et son coin repas extérieur, un petit vergé et son potager de l'autre côté de la maison.
Garage d'environ 30 m² et cave au sous/sol.
Terrain clôt, parking véhicules et portail d'accès
Voir plus

Référence: 86674709
DPE
A
B
C
D
E
F
G
GES
A
B
C
D
E
F
G
Appartement à SAN-NICOLAO
Appartement à SAN-NICOLAO
Appartement à SAN-NICOLAO
Appartement à SAN-NICOLAO
Appartement à SAN-NICOLAO
Appartement à SAN-NICOLAO
Appartement à SAN-NICOLAO
Appartement à SAN-NICOLAO
Appartement à SAN-NICOLAO
Appartement à SAN-NICOLAO
Appartement à SAN-NICOLAO
Appartement à SAN-NICOLAO
Appartement à SAN-NICOLAO
Appartement à SAN-NICOLAO
Appartement à SAN-NICOLAO
Appartement à SAN-NICOLAO
Appartement à SAN-NICOLAO
Appartement à SAN-NICOLAO
Appartement à SAN-NICOLAO
Appartement à SAN-NICOLAO
Appartement à SAN-NICOLAO
Appartement à SAN-NICOLAO
Appartement à SAN-NICOLAO
Appartement à SAN-NICOLAO
Appartement à SAN-NICOLAO
Appartement à SAN-NICOLAO
Appartement à SAN-NICOLAO
Appartement à SAN-NICOLAO
Appartement à SAN-NICOLAO
Appartement à SAN-NICOLAO
Appartement à SAN-NICOLAO
Appartement à SAN-NICOLAO
Appartement à SAN-NICOLAO
Appartement à SAN-NICOLAO
Appartement à SAN-NICOLAO
Appartement à SAN-NICOLAO
Géorisques

Les informations sur les risques auxquels ce bien est exposé sont disponibles sur le site Géorisques : www.georisques.gouv.fr

Ce site est protégé par hCaptcha Politique de confidentialité et Conditions d’utilisation s’appliquent.

En poursuivant votre navigation sans modifier vos paramètres, vous acceptez l'utilisation de cookies susceptibles de réaliser des statistiques de visite. Cliquez ici pour plus d'informations