Maison de plain pied à terminer à sermamagny

— Sermamagny 90300 —
196 000 €
80 m² / 503 m²
3 pièces
parkingjardin

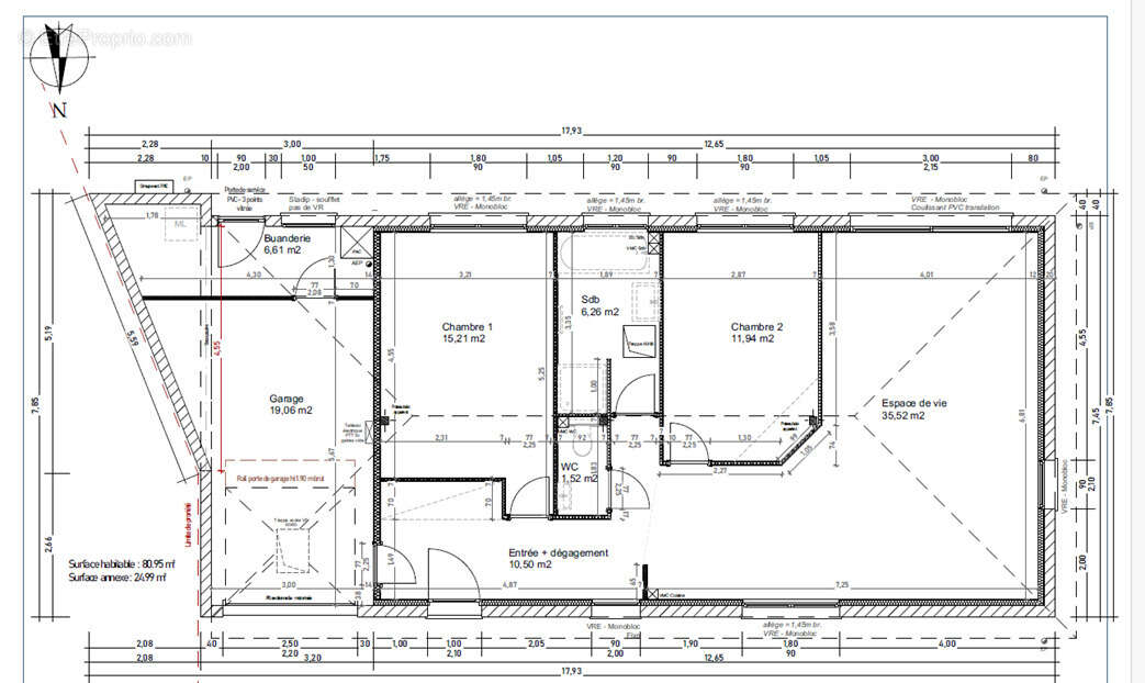
À vendre : Villa de plain-pied à terminer 2 chambres 80,95 m2 Terrain 503 m2 SERMAMAGNY (90)
À Sermamagny, dans le Territoire de Belfort, découvrez cette villa de plain-pied à terminer, offrant un beau potentiel pour un premier achat ou un projet de vie sur mesure.
D’une surface habitable de 80,95 m2, cette maison se compose selon un aménagement type mais peut être modfié :


d’un espace de vie lumineux de 35 m2 avec salon et cuisine ouverte,


de 2 chambres,


d’une salle de bain à aménager selon vos envies.


Édifiée sur un terrain de 503 m2, cette villa offre un cadre agréable pour profiter des beaux jours. Un garage vient compléter ce bien et ainsi qu'un espace buanderie avec accès sur le jardin.
Située dans un environnement calme et verdoyant, cette maison combine confort, praticité et qualité de vie.
Prix de vente : 196 000 €Pour tout renseignement ou pour organiser une visite, contactez Marcelin PREVOT SARL Aurélien KELLER IMMOBILIER.
Voir plus

Référence: 634
Honoraires à la charge du vendeur.
Barème des honoraires
Maison à SERMAMAGNY
Maison à SERMAMAGNY
Maison à SERMAMAGNY
Géorisques

Les informations sur les risques auxquels ce bien est exposé sont disponibles sur le site Géorisques : www.georisques.gouv.fr

Ce site est protégé par hCaptcha Politique de confidentialité et Conditions d’utilisation s’appliquent.

En poursuivant votre navigation sans modifier vos paramètres, vous acceptez l'utilisation de cookies susceptibles de réaliser des statistiques de visite. Cliquez ici pour plus d'informations