Bénéficiez des services de nos partenaires locaux soigneusement sélectionnés
pour vous accompagner dans votre parcours d'achat immobilier

Appartement 43 m² à Saint-Medard-En-Jalles

— Saint-Medard-En-Jalles 33160 —
189 000 €
43 m²
2 pièces
parkingbalcon/terrasseascenseuraccès handicapé

Nos partenaires locaux
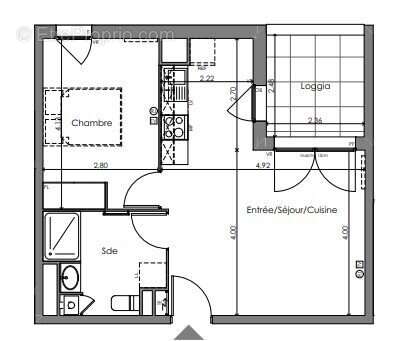
Découvrez ce bel appartement T2 d'une surface habitable de 43m², offrant un cadre de vie fonctionnel et agréable. Idéalement situé au coeur de Saint-Médard-en-Jalles, l'appartement bénéficie d'un emplacement privilégié, à proximité immédiate de toutes les commodités : commerces, écoles, transports et services.

L'entrée s'ouvre sur une pièce de vie avec séjour et cuisine ouverte de 25m², formant un espace lumineux et convivial.Cet espace donne accès à une terrasse de 6m², idéale pour profiter d'un extérieur en toute saison.
L'espace nuit se compose d'une chambre confortable d'environ de 12m² avec placard, ainsi que d'une salle d'eau avec wc.

Une place de parking est incluse, avec la possibilité d'en acquérir une seconde en SUS.

Bien agencé et optimisé, cet appartement conviendra parfaitement à une résidence principale, un pied-à-terre ou un investissement locatif.

*Visuel non contractuel

Honoraires à la charge du vendeur. Dans une copropriété de 44 lots. Aucune procédure n'est en cours. DPE vierge. Les informations sur les risques auxquels ce bien est exposé sont disponibles sur le site Géorisques : georisques.gouv.fr.
Voir plus

Référence: VA1925-AETV
Bien en copropriété. Nombre de lots : 44.
Honoraires à la charge du vendeur.
Barème des honoraires
Appartement à SAINT-MEDARD-EN-JALLES
Appartement à SAINT-MEDARD-EN-JALLES
Appartement à SAINT-MEDARD-EN-JALLES
Appartement à SAINT-MEDARD-EN-JALLES
Géorisques

Les informations sur les risques auxquels ce bien est exposé sont disponibles sur le site Géorisques : www.georisques.gouv.fr

Ce site est protégé par hCaptcha Politique de confidentialité et Conditions d’utilisation s’appliquent.

En poursuivant votre navigation sans modifier vos paramètres, vous acceptez l'utilisation de cookies susceptibles de réaliser des statistiques de visite. Cliquez ici pour plus d'informations