Bénéficiez des services de nos partenaires locaux soigneusement sélectionnés
pour vous accompagner dans votre parcours d'achat immobilier

Appartement 68 m² à Saint-Medard-En-Jalles

— Saint-Medard-En-Jalles 33160 —
302 000 €
68 m²
3 pièces
parkingbalcon/terrasseascenseuraccès handicapé

Nos partenaires locaux
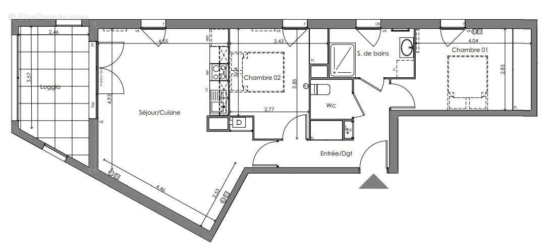
Découvrez ce bel appartement T3, idéalement situé au coeur de Saint-Médard-en-Jalles, à proximité immédiate de la mairie, des commerces et de toutes les commodités, offrant un cadre de vie pratique et recherché.

L'entrée dessert une grande pièce de vie avec cuisine ouverte de 30 m², lumineuse et conviviale, formant un véritable espace de réception.Cet espace s'ouvre directement sur une terrasse de 11 m², idéale pour profiter d'un extérieur confortable au quotidien.
L'espace nuit propose deux chambres, dont une chambre de 12 m², ainsi qu'une salle de bains et des WC séparés, garantissant confort et fonctionnalité.

Un appartement agréable à vivre, où chaque espace a été pensé pour conjuguer confort et fluidité.

Deux places de parkings sécurisées complètent ce bien.

*Visuel non contractuel

Honoraires à la charge du vendeur. Dans une copropriété de 44 lots. Aucune procédure n'est en cours. DPE vierge. Les informations sur les risques auxquels ce bien est exposé sont disponibles sur le site Géorisques : georisques.gouv.fr.
Voir plus

Référence: VA1937-AETV
Bien en copropriété. Nombre de lots : 44.
Honoraires à la charge du vendeur.
Barème des honoraires
Appartement à SAINT-MEDARD-EN-JALLES
Appartement à SAINT-MEDARD-EN-JALLES
Appartement à SAINT-MEDARD-EN-JALLES
Appartement à SAINT-MEDARD-EN-JALLES
Géorisques

Les informations sur les risques auxquels ce bien est exposé sont disponibles sur le site Géorisques : www.georisques.gouv.fr

Ce site est protégé par hCaptcha Politique de confidentialité et Conditions d’utilisation s’appliquent.

En poursuivant votre navigation sans modifier vos paramètres, vous acceptez l'utilisation de cookies susceptibles de réaliser des statistiques de visite. Cliquez ici pour plus d'informations