Bénéficiez des services de nos partenaires locaux soigneusement sélectionnés
pour vous accompagner dans votre parcours d'achat immobilier

Appartement 83 m² à Saint-Medard-En-Jalles

— Saint-Medard-En-Jalles 33160 —
359 000 €
83 m²
4 pièces
parkingbalcon/terrasseascenseuraccès handicapé

Nos partenaires locaux
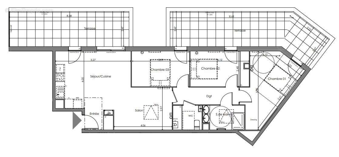
Découvrez ce bel appartement T4, idéalement situé au coeur de Saint-Médard-en-Jalles, à proximité immédiate de la mairie, des commerces et de toutes les commodités, offrant un cadre de vie recherché.

L'entrée dessert une grande pièce de vie de 34m2 avec cuisine ouverte, formant un espace central convivial et agréable à vivre.Cet espace s'ouvre sur une première terrasse de 21m2, offrant une véritable continuité intérieur / extérieur et plusieurs possibilités d'aménagement.
L'espace nuit propose trois chambres, dont une chambre de 15 m2 avec coin dressing, une autre disposant d'un placard, et les trois chambres bénéficiant d'un accès à la seconde terrasse de 28m2, apportant confort et ouverture sur l'extérieur.Une salle de bains et des WC séparés complètent l'ensemble.

Un appartement offrant une configuration fonctionnelle et une relation intérieur / extérieur particulièrement appréciable.

Deux places de parkings sécurisées complètent ce bien.

*Visuel non contractuel

Honoraires à la charge du vendeur. Dans une copropriété de 44 lots. Aucune procédure n'est en cours. DPE vierge. Les informations sur les risques auxquels ce bien est exposé sont disponibles sur le site Géorisques : georisques.gouv.fr.
Voir plus

Référence: VA1939-AETV
Bien en copropriété. Nombre de lots : 44.
Honoraires à la charge du vendeur.
Barème des honoraires
Appartement à SAINT-MEDARD-EN-JALLES
Appartement à SAINT-MEDARD-EN-JALLES
Appartement à SAINT-MEDARD-EN-JALLES
Appartement à SAINT-MEDARD-EN-JALLES
Géorisques

Les informations sur les risques auxquels ce bien est exposé sont disponibles sur le site Géorisques : www.georisques.gouv.fr

Ce site est protégé par hCaptcha Politique de confidentialité et Conditions d’utilisation s’appliquent.

En poursuivant votre navigation sans modifier vos paramètres, vous acceptez l'utilisation de cookies susceptibles de réaliser des statistiques de visite. Cliquez ici pour plus d'informations