Bénéficiez des services de nos partenaires locaux soigneusement sélectionnés
pour vous accompagner dans votre parcours d'achat immobilier

Voir tous les partenaires locaux

Caen beaulieu appartement a vendre avec cave et place de parking en sous sol

— Caen 14000 —
139 900 €
43 m²
2 pièces
parkingbalcon/terrasse

Nos partenaires locaux
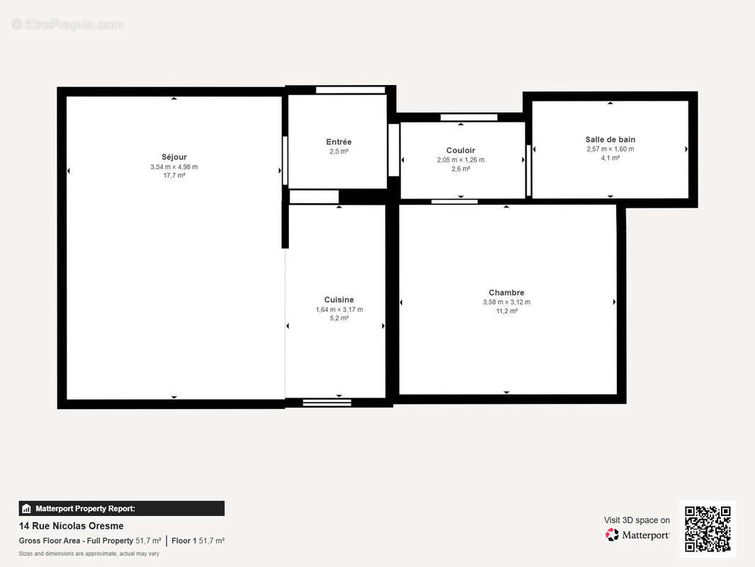
EN EXCLUSIVITE - CAEN - Quartier Beaulieu, Rue Nicolas Oresme, un appartement à vendre de 2 pièces principales de 43.93m2 comprenant une entrée avec placard, un séjour donnant sur un petit balcon, une cuisine ouverte sur le séjour aménagée, une chambre avec un placard, une salle de douches et un WC indépendant.
Un place de parking et une cave en sous-sol complètent ce bien.
Consommation d'énergie : D , Gaz à effet de serre : B

Montant estimé des dépenses annuelles d'énergie : 387 €. Estimation réalisée à partir des prix énergétiques de référence des années 2021, 2022 et 2023.
Quote part annuelle de charges: 1371.44€.

Prix du bien: 139 900€, honoraires à la charge du vendeur.
La visite virtuelle est disponible sur demande.
Les informations sur les risques auxquels ce bien est exposé sont disponibles sur le site georisques.gouv.fr.
Cabinet QUESNEE [Coordonnées masquées]/[Coordonnées masquées].
Voir plus

Référence: 611
Bien en copropriété. Nombre de lots : 234. Charges de copropriété : 1371 €.
Honoraires à la charge du vendeur.
Barème des honoraires
DPE
A
B
C
D
E
F
G
GES
A
B
C
D
E
F
G
Appartement à CAEN
Appartement à CAEN
Appartement à CAEN
Appartement à CAEN
Appartement à CAEN
Appartement à CAEN
Appartement à CAEN
Appartement à CAEN
Appartement à CAEN
Géorisques

Les informations sur les risques auxquels ce bien est exposé sont disponibles sur le site Géorisques : www.georisques.gouv.fr

Ce site est protégé par hCaptcha Politique de confidentialité et Conditions d’utilisation s’appliquent.

En poursuivant votre navigation sans modifier vos paramètres, vous acceptez l'utilisation de cookies susceptibles de réaliser des statistiques de visite. Cliquez ici pour plus d'informations