Bénéficiez des services de nos partenaires locaux soigneusement sélectionnés
pour vous accompagner dans votre parcours d'achat immobilier

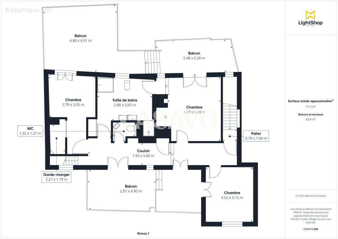
Vente Maison 6 pièces de 226m² - 95410 Groslay

— Groslay 95410 —
760 000 €
226 m² / 657 m²
6 pièces
parkingjardin

Nos partenaires locaux
Casavo vous propose à la vente cette belle maison familiale à la vue dégagée de 6 pièces 226 m² est située à Groslay dans un quartier résidentiel proche des écoles, commerces, transports et mairie.
Elle se compose d'un séjour donnant sur un jardin paysager, d'une cuisine ouverte, de 3 chambres donnant sur de grandes terrasses, 1 chambre sous comble et de deux salles de bain et salle d'eau de 4WC ainsi qu'une cuisine d'été, un espace bureau et deux pièces pouvant servir d' espace de jeu ou de lieu de stockage.
Vous avez la possibilité de stationner dans la cour intérieure pas moins de 5 voitures et deux grande caves.
Ce bien possède beaucoup de potentiel, nombreux aménagements à faire selon vos envies.
Taxe foncière : 2444€ par an

Ce bien est commercialisé par Casavo.

Intéressé par ce bien ? Plus d'informations sur le site de Casavo.
Voir plus

Référence: 41037
Honoraires à la charge du vendeur.
DPE
A
B
C
D
E
F
G
GES
A
B
C
D
E
F
G
Maison à GROSLAY
Maison à GROSLAY
Maison à GROSLAY
Maison à GROSLAY
Maison à GROSLAY
Maison à GROSLAY
Maison à GROSLAY
Maison à GROSLAY
Maison à GROSLAY
Maison à GROSLAY
Maison à GROSLAY
Maison à GROSLAY
Maison à GROSLAY
Maison à GROSLAY
Maison à GROSLAY
Maison à GROSLAY
Maison à GROSLAY
Maison à GROSLAY
Maison à GROSLAY
Maison à GROSLAY
Maison à GROSLAY
Géorisques

Les informations sur les risques auxquels ce bien est exposé sont disponibles sur le site Géorisques : www.georisques.gouv.fr

Ce site est protégé par hCaptcha Politique de confidentialité et Conditions d’utilisation s’appliquent.

En poursuivant votre navigation sans modifier vos paramètres, vous acceptez l'utilisation de cookies susceptibles de réaliser des statistiques de visite. Cliquez ici pour plus d'informations