Bénéficiez des services de nos partenaires locaux soigneusement sélectionnés
pour vous accompagner dans votre parcours d'achat immobilier

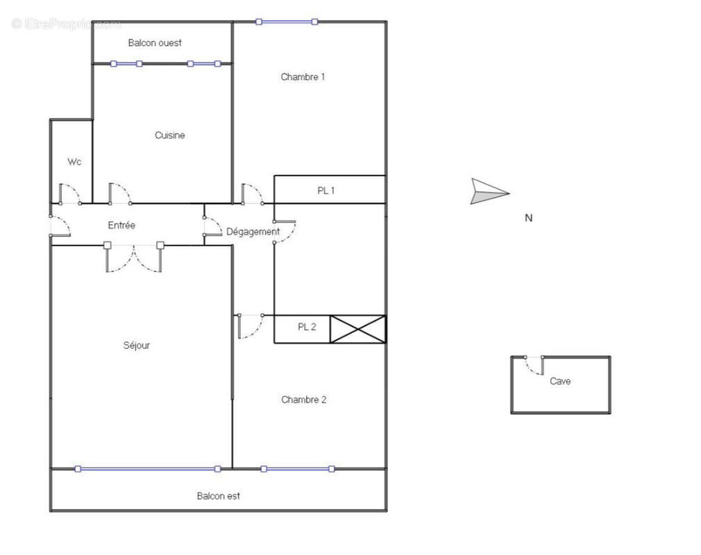
Appartement T3 traversant avec balcon, parking et cave Immeuble avec ascenseur

— Toulon 83100 —
159 000 €
60 m²
3 pièces
parkingbalcon/terrasse

Nos partenaires locaux
Situé à l’Est de Toulon, dans le quartier de Saint-Jean-du-Var, à deux pas de la clinique Saint-Michel, des axes routiers, des écoles et des commodités du quotidien, cet appartement bénéficie d’un emplacement pratique et bien desservi.


Au sein d’une copropriété entretenue des années 1970, comprenant 24 lots d’habitation et 10 emplacements de stationnement, l’immeuble est doté d’un ascenseur et présente des parties communes propres et soignées.


L’appartement, de type T3 pour une surface de 60m2, est situé au 4ᵉ étage sur 5 avec ascenseur. Il offre une configuration traversante Est / Ouest, assurant une belle luminosité tout au long de la journée, ainsi qu’une vue relativement dégagée.

Il se compose de :

• une entrée ouvrant sur la pièce de vie, prolongée par un balcon d’environ 5 m2

• une cuisine indépendante avec loggia attenante,

• deux chambres, toutes deux équipées de placards,

• une salle de bains,

• un WC indépendant.


L’appartement est à rafraîchir, offrant ainsi un potentiel d’optimisation intéressant, tant pour une résidence principale que pour un investissement patrimonial


En annexes : un emplacement de stationnement, une cave en sous-sol, l’ensemble étant accessible par ascenseur. Un local vélos est également présent dans l’immeuble .


Un bien sain, bien situé, à fort potentiel, dans un secteur urbain dynamique et recherché de Toulon Est.
Voir plus

Bien en copropriété. Nombre de lots : 34. Charges de copropriété : 2452 €.
Honoraires à la charge du vendeur.
Barème des honoraires
DPE
A
B
C
D
E
F
G
GES
A
B
C
D
E
F
G
Appartement à TOULON
Appartement à TOULON
Appartement à TOULON
Appartement à TOULON
Appartement à TOULON
Appartement à TOULON
Appartement à TOULON
Appartement à TOULON
Appartement à TOULON
Appartement à TOULON
Appartement à TOULON
Appartement à TOULON
Appartement à TOULON
Géorisques

Les informations sur les risques auxquels ce bien est exposé sont disponibles sur le site Géorisques : www.georisques.gouv.fr

Ce site est protégé par hCaptcha Politique de confidentialité et Conditions d’utilisation s’appliquent.

En poursuivant votre navigation sans modifier vos paramètres, vous acceptez l'utilisation de cookies susceptibles de réaliser des statistiques de visite. Cliquez ici pour plus d'informations