Bénéficiez des services de nos partenaires locaux soigneusement sélectionnés
pour vous accompagner dans votre parcours d'achat immobilier

Maison 141 m² à Bonnes

— Bonnes 86300 —
188 000 €
141 m² / 340 m²
4 pièces
parkingbalcon/terrassejardinpiscine

Nos partenaires locaux
86300 BONNES - 10MIN CHAUVIGNY - MAISON 4 PIECES - 3 CHAMBRES - SURFACE 141 M2 - TERRASSE 68 M2 - JARDIN 200 M2 - BASSIN D'EAU

EffiCity, l'agence qui estime votre bien en ligne, vous propose cette maison de 141 m² répartie sur deux niveaux, sur une parcelle d'environ 340 m² avec bassin d'eau et cour extérieure. Maison ancienne construite dans les années 1900 puis rénovée en 2020.

Les points techniques :
- chauffage par convecteurs électriques et poêle à pellets (installé fin 2023),
- ballon d'eau chaude 200L (2020),
- VMC simple flux,
- menuiseries PVC double vitrage,
- fibre optique,
- assainissement par microstation (vidangée en novembre 2025),
- toiture refaite en 2019 (fibro-ciment sans amiante),
- orientation ouest.

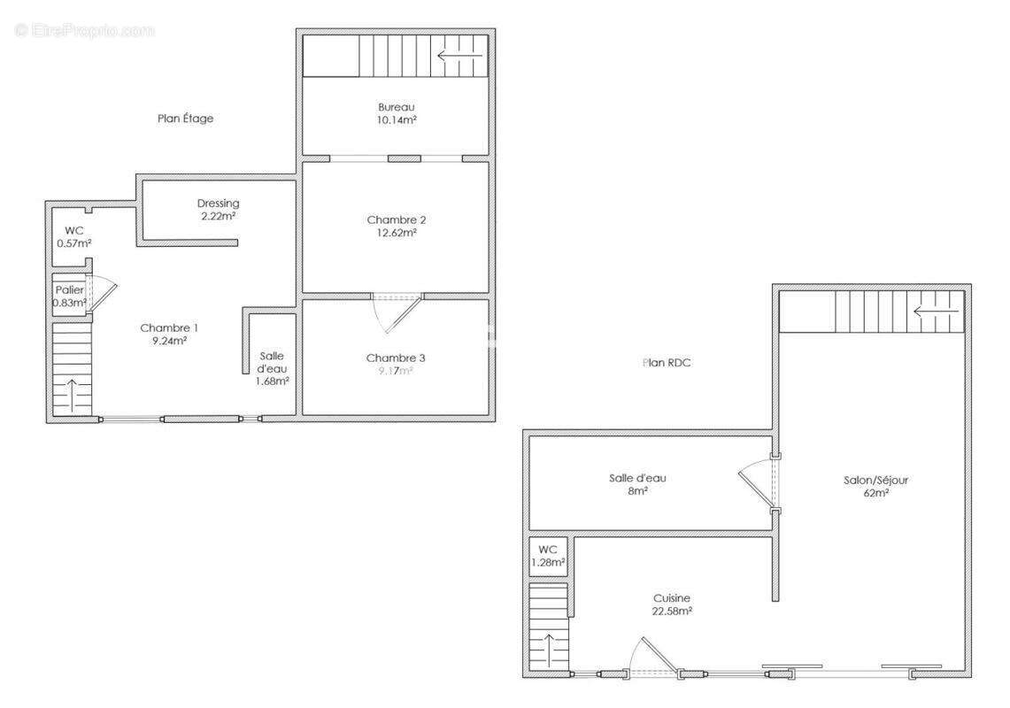
Le bien est réparti de la manière suivante :

Au rez-de-chaussée :
- une cuisine semi-ouverte aménagée et équipée (22.58m²),
- un salon-séjour (62m²) avec baie vitrée et un espace repas central (poutre d'origine),
- une salle d'eau (8m²) avec douche à l'italienne,
- des WC (1.28m²),

À l'étage (au-dessus du séjour) :
- deux chambres en enfilade (12.62m² et 9.17m²),
- un espace bureau de 10.14m²,

Au-dessus de la cuisine :
- une chambre parentale (9.24m²) avec une salle d'eau (1.68m²), un dressing (2.22m²) et des WC (0.57m²).

Côté extérieur :
- une terrasse sur chevrons de 68m²,
- un bassin extérieur (environ 1,40 m de profondeur, fond plat, moins de 14 m³),
- un jardin d'environ 200 m²,
- un cabanon,
- stationnement dans la cour et devant la maison.

Consommation annuelle estimée entre 1 400 € et 1 800 € d'électricité + environ 100 sacs de pellets/an (400 - 450€).
Taxe foncière : 1 107 €.

La maison bénéficie d'un environnement pratique avec l'ensemble des commodités accessibles en environ 5 minutes : école primaire, boulangerie, pharmacie, supérette, pôle santé, coiffeur, restaurant, étang de loisirs et centre aquatique

Maison pleine de charme, idéale pour une résidence principale familiale ou pour les amateurs de biens anciens rénovés. Contactez-moi dès maintenant pour organiser une visite.
Les informations sur les risques auxquels ce bien est exposé sont disponibles sur le site Georisque : georisques. gouv. fr
Morgane Daniault - EI - est Agent Commercial mandataire en immobilier, immatriculé au Registre Spécial des Agents Commerciaux du Tribunal de Commerce de Poitiers sous le n°983449257.
Siège social du mandant : effiCity, 48 avenue de Villiers - 75017 PARIS - Société par Actions Simplifiée, société au capital de 132 373,05 euros, immatriculée au RCS Paris 497 617 746 et titulaire de la Carte professionnelle CPI 75[Coordonnées masquées]02 025 - CCI Paris IDF - Caisse de Garantie : GALIAN Assurances 89 rue de la Boétie 75008 Paris
Voir plus

Référence: 204428
Honoraires d'agence de 4.44% à la charge de l'acquéreur
Barème des honoraires
DPE
A
B
C
D
E
F
G
GES
A
B
C
D
E
F
G
Maison à BONNES
Maison à BONNES
Maison à BONNES
Maison à BONNES
Maison à BONNES
Maison à BONNES
Maison à BONNES
Maison à BONNES
Maison à BONNES
Maison à BONNES
Maison à BONNES
Maison à BONNES
Maison à BONNES
Maison à BONNES
Maison à BONNES
Maison à BONNES
Maison à BONNES
Maison à BONNES
Géorisques

Les informations sur les risques auxquels ce bien est exposé sont disponibles sur le site Géorisques : www.georisques.gouv.fr

Ce site est protégé par hCaptcha Politique de confidentialité et Conditions d’utilisation s’appliquent.