Maison 100 m² à Barjols

— Barjols 83670 —
274 000 €
100 m² / 10 740 m²
4 pièces
jardin

KAISER IMMOBILIER - Elios Group 83670 BARJOLS
Ce bien est situé sur une parcelle de 10 740 m² et offre environ 100 m² habitables. La construction, mêlant bois, pierre et maçonnerie, s'intègre naturellement dans son environnement.

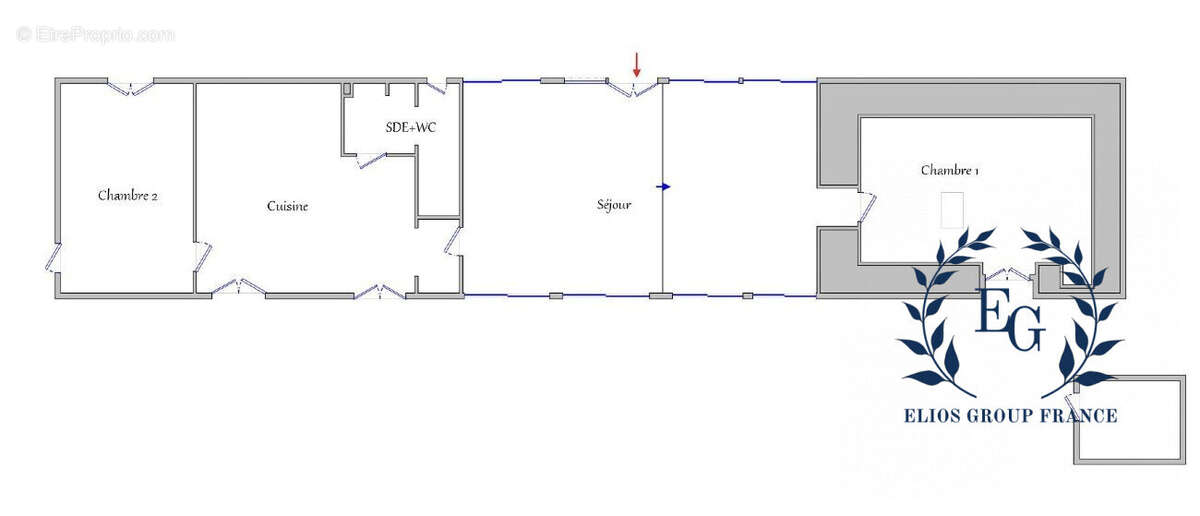
Il se compose de deux chambres, d'une cuisine, d'un salon avec salle à manger, ainsi que d'une salle d'eau avec WC.
Le cabanon est équipée de double vitrage, d'une fosse septique conforme, de l'eau de la ville et d'une installation électrique par panneaux solaires.

Le bien se trouve en zone Nco et ne peut pas être agrandi.
La construction a fait l'objet d'un contrôle administratif. Une amende a été réglée par les vendeurs, ce qui écarte tout risque de démolition à ce jour.En l'absence de permis de construire, la vente se fait exclusivement au comptant, les banques ne finançant pas ce type de bien.
Un bien idéal pour les personnes recherchant le calme, la nature et l'autonomie.

?À découvrir sans tarder - dossier complet et visites sur demande.
Contact : Cyrille OKKADJIAN [Coordonnées masquées] Conseiller Immobilier SAS KAISER IMMOBILIER

ANGLAIS :
KAISER IMMOBILIER - Elios Group 83670 BARJOLS
This property is located on a 10,740 m² plot and offers approximately 100 m² of living space. The construction, combining wood, stone and masonry, blends naturally into its surroundings.


It comprises two bedrooms, a kitchen, a living room with dining area, and a shower room with WC.
The cottage is equipped with double glazing, a compliant septic tank, mains water and solar panel electricity.


The property is located in an Nco zone and cannot be extended.
The construction has been subject to administrative inspection. A fine has been paid by the sellers, which rules out any risk of demolition at this time. In the absence of a building permit, the sale is exclusively cash-based, as banks do not finance this type of property.
An ideal property for those seeking peace and quiet, nature and independence.


?Don't delay - full details and viewings available on request.
Contact: Cyrille OKKADJIAN [Coordonnées masquées] Property Advisor SAS KAISER IMMOBILIER
Translated with DeepL.com (free version)

Honoraires à la charge du vendeur. Classe énergie B, Classe climat A Montant estimé des dépenses annuelles d'énergie pour un usage standard : entre 846.00 € et 1146.00 € sur les années 2021, 2022 et 2023 (abonnements compris). Les informations sur les risques auxquels ce bien est exposé sont disponibles sur le site Géorisques : georisques.gouv.fr.

Votre conseiller ELIOS GROUP - BARJOLS : Cyrille OKKADJIAN
Agent commercial (Entreprise individuelle).
Les informations sur les risques auxquels ce bien est exposé sont disponibles sur le site Géorisques : www.georisques.gouv.fr
Voir plus

Référence: 336-ELIOSGROUP1
Honoraires à la charge du vendeur.
Barème des honoraires
DPE
A
B
C
D
E
F
G
GES
A
B
C
D
E
F
G
Maison à BARJOLS
Maison à BARJOLS
Maison à BARJOLS
Maison à BARJOLS
Maison à BARJOLS
Maison à BARJOLS
Maison à BARJOLS
Maison à BARJOLS
Géorisques

Les informations sur les risques auxquels ce bien est exposé sont disponibles sur le site Géorisques : www.georisques.gouv.fr

Ce site est protégé par hCaptcha Politique de confidentialité et Conditions d’utilisation s’appliquent.

En poursuivant votre navigation sans modifier vos paramètres, vous acceptez l'utilisation de cookies susceptibles de réaliser des statistiques de visite. Cliquez ici pour plus d'informations