Maison de plain-pied avec 4090m² de terrain

— Sotta 20146 —
655 000 €
92 m² / 4 000 m²
4 pièces
jardin

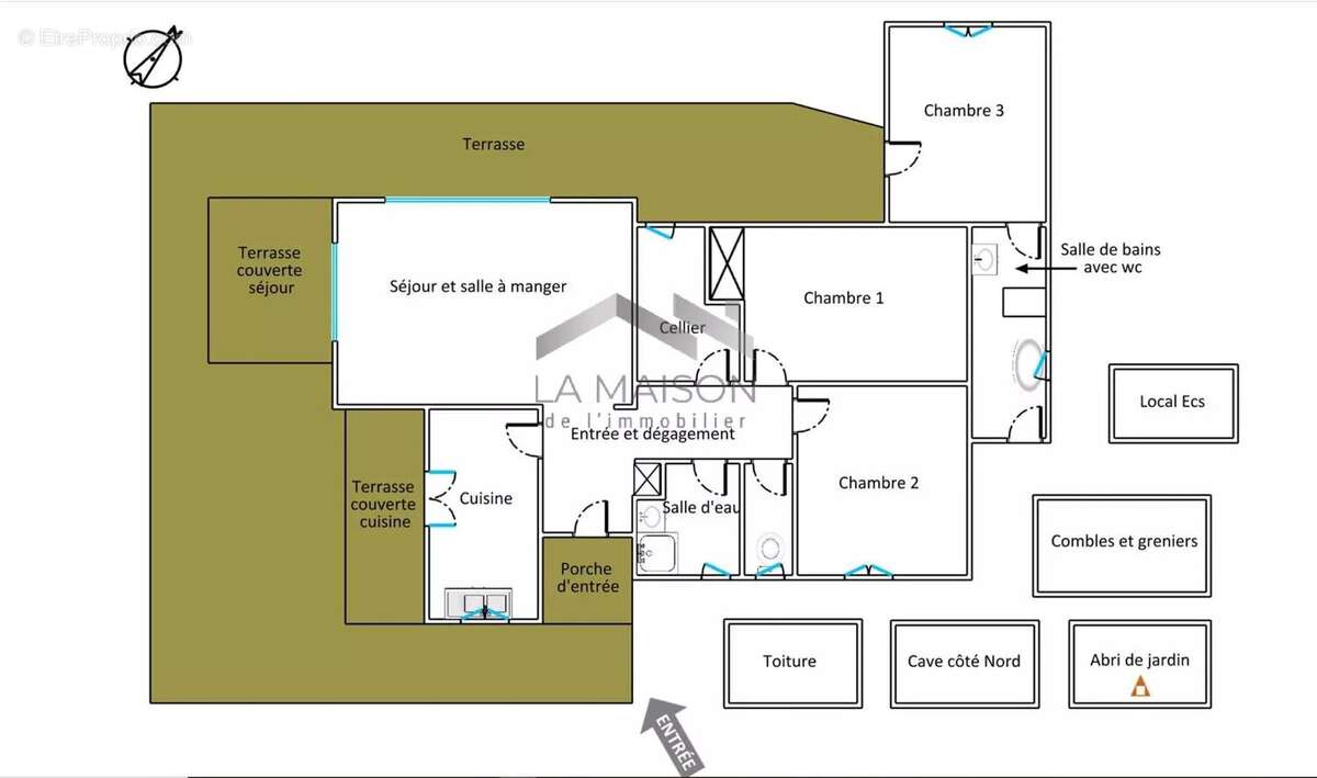
Située dans un environnement calme et paisible, à quelques minutes du village de Sotta, cette maison de plain-pied d'une surface habitable de 92m² offre une belle vue dégagée sur les montagnes.
Nichée sur un terrain de 4090m², elle bénéficie d'un cadre privilégié et sans vis-à-vis.

Un détachement d'une partie de la parcelle est envisageable par une simple déclaration préalable.

Elle se compose de 3 chambres, 2 salles de bain, un séjour / coin salon avec cheminée donnant sur la terrasse extérieure.
Une cusine indépendante avec possible ouverture sur la terrasse.

La maison est entièrement climatisée. Une cave et un espace de stockage complètent ce bien.

Traitement des eaux usées à usage domestique de type Assainissement non Collectif
(Individuel - Fosse-Septique).
Un Diagnostic de Performance Énergétique est en cours de réalisation (DPE).

Des travaux d'amélioration et d'aménagement sont à prévoir afin de correspondre aux standards actuels et de confort de sécurité.
Voir plus

Référence: 85708723
DPE
A
B
C
D
E
F
G
GES
A
B
C
D
E
F
G
Maison à SOTTA
Maison à SOTTA
Maison à SOTTA
Maison à SOTTA
Maison à SOTTA
Maison à SOTTA
Maison à SOTTA
Maison à SOTTA
Maison à SOTTA
Maison à SOTTA
Maison à SOTTA
Maison à SOTTA
Maison à SOTTA
Maison à SOTTA
Maison à SOTTA
Maison à SOTTA
Maison à SOTTA
Maison à SOTTA
Maison à SOTTA
Maison à SOTTA
Maison à SOTTA
Maison à SOTTA
Maison à SOTTA
Maison à SOTTA
Maison à SOTTA
Maison à SOTTA
Maison à SOTTA
Géorisques

Les informations sur les risques auxquels ce bien est exposé sont disponibles sur le site Géorisques : www.georisques.gouv.fr

Ce site est protégé par hCaptcha Politique de confidentialité et Conditions d’utilisation s’appliquent.

En poursuivant votre navigation sans modifier vos paramètres, vous acceptez l'utilisation de cookies susceptibles de réaliser des statistiques de visite. Cliquez ici pour plus d'informations