Bénéficiez des services de nos partenaires locaux soigneusement sélectionnés
pour vous accompagner dans votre parcours d'achat immobilier

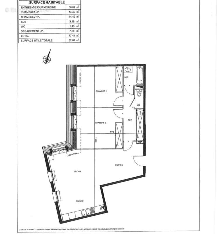
Appartement 77 m² à Saint-Quentin

— Saint-Quentin 02100 —
66 000 €
77 m²
3 pièces
parking

Nos partenaires locaux
Idéal investisseur – Forom® Immobilier

Forom Immobilier vous propose cet appartement T3 d'une surface d'environ 77 m² au 3ème et dernier étage, situé dans une résidence sécurisée sur la commune de Saint-Quentin.

Le logement dispose d'un séjour avec cuisine ouverte, deux chambres, une salle de bains, un WC et une place de parking.

• Loyer mensuel : 583,13€ / mois soit 523,13€ HC + 60€ CL
• Rentabilité : 10,6% brute !
• Charges de copropriété : 86,61€ / mois
• Eau chaude et chauffage individuels électrique
• Taxe foncière : 2 049€ / an (dont 307 € de TEOM remboursée par le locataire)
• Date de fin de bail : 23/06/2027
• DPE : C
• Nombre de lots : 122
• Honoraires charge vendeur

La résidence
Celle-ci bénéficie d'un emplacement pratique dans un secteur calme et résidentiel à proximité du Parc des Champs-Élysées et des commodités du centre-ville. Les résidents profitent d'un cadre de vie agréable à quelques pas seulement des transports en commun, avec un accès facile à la gare de Saint-Quentin et aux services du quotidien. Une adresse intéressante pour allier confort de vie et investissement durable dans une ville dynamique des Hauts-de-France.

Honoraires à la charge du vendeur. Dans une copropriété de 122 lots. Aucune procédure n'est en cours. Classe énergie C, Classe climat A Montant moyen estimé des dépenses annuelles d'énergie pour un usage standard, établi à partir des prix de l'énergie de l'année 2023 : entre 1019.00 et 1379.00 €. Les informations sur les risques auxquels ce bien est exposé sont disponibles sur le site Géorisques : georisques.gouv.fr.
Voir plus

Référence: 3976-FOROM
Bien en copropriété. Nombre de lots : 122.
Honoraires à la charge du vendeur.
Barème des honoraires
DPE
A
B
C
D
E
F
G
GES
A
B
C
D
E
F
G
Appartement à SAINT-QUENTIN
Appartement à SAINT-QUENTIN
Appartement à SAINT-QUENTIN
Appartement à SAINT-QUENTIN
Appartement à SAINT-QUENTIN
Appartement à SAINT-QUENTIN
Appartement à SAINT-QUENTIN
Appartement à SAINT-QUENTIN
Appartement à SAINT-QUENTIN
Géorisques

Les informations sur les risques auxquels ce bien est exposé sont disponibles sur le site Géorisques : www.georisques.gouv.fr

Ce site est protégé par hCaptcha Politique de confidentialité et Conditions d’utilisation s’appliquent.

En poursuivant votre navigation sans modifier vos paramètres, vous acceptez l'utilisation de cookies susceptibles de réaliser des statistiques de visite. Cliquez ici pour plus d'informations