Bénéficiez des services de nos partenaires locaux soigneusement sélectionnés
pour vous accompagner dans votre parcours d'achat immobilier

Appartement

— Nantes 44100 —
128 000 €
44 m²
2 pièces
ascenseur

Nos partenaires locaux
44100 - NANTES - CHANTENAY- T2 - LUMINEUX AVEC PARKING, CAVE ET VUE DÉGAGÉE

EffiCity, l'agence qui estime votre bien en ligne, vous propose cet appartement situé dans le quartier recherché de Chantenay, au sein d'une belle copropriété bien entretenue et arborée, découvrez cet appartement de type 2 au 3ᵉ étage avec ascenseur.

Situé au cœur du quartier historique et dynamique de Chantenay, cet appartement de 44 m² est une véritable opportunité pour ceux qui cherchent un bien à personnaliser. Niché dans un secteur authentique, il offre un cadre de vie privilégié avec son espace vert, à quelques pas Bords de Loire et du marché de la place Liberté.

L'appartement se distingue par sa luminosité, son beau parquet d'origine qui apporte immédiatement chaleur et cachet à l'espace. Ce bien est à moderniser et à mettre à votre goût. C'est une page blanche avec un fort potentiel : que vous souhaitiez repenser la cuisine ouverte ou créer une ambiance contemporaine, les volumes se prêtent parfaitement à une rénovation créative.

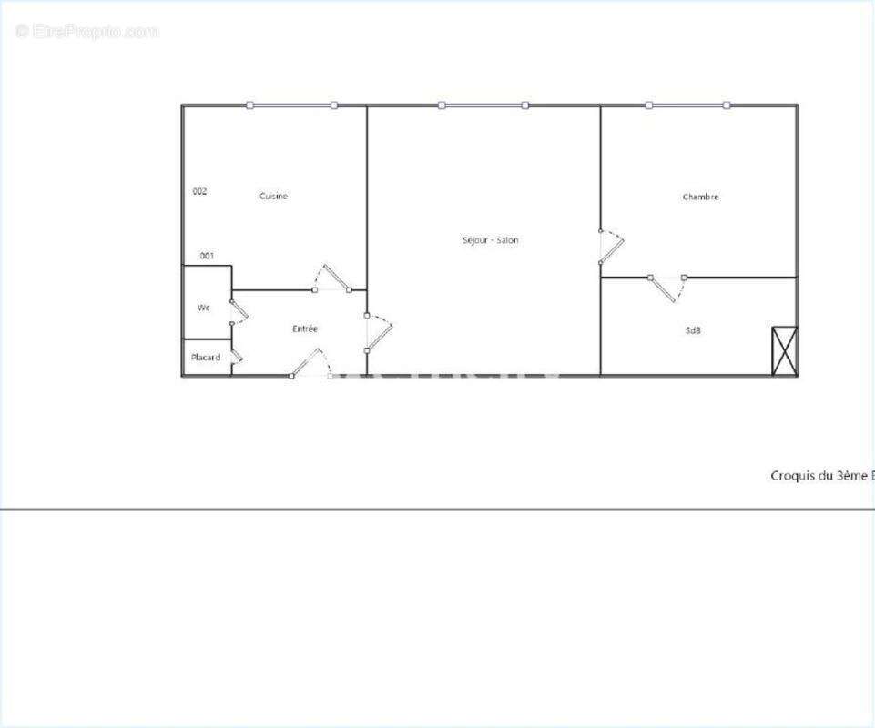
L'agencement est fonctionnel, avec une entrée, une grande cuisine, un séjour, une chambre avec sa salle de bain atteannt avec placard. La chaudière a été changé fin 2025.

Le bien sera libre de locataire en novembre 2026.

Vivre à Chantenay, c'est choisir une vie de quartier "tout à pied" : restaurants, supermarchés, banques, pharmacies et écoles sont à proximité immédiate. Côté déplacements, tout est pensé pour la mobilité :

Transports : Accès direct aux lignes de Bus C1, C20 et 81.

Vélo : Rejoignez le centre-ville de Nantes en quelques minutes (l'immeuble dispose d'un local vélos sécurisé).

Parking : Le bien est complété par une place de parking privée.

Une exclusivité à fort potentiel à visiter rapidement !
Les informations sur les risques auxquels ce bien est exposé sont disponibles sur le site Georisque : georisques. gouv. fr
Sandra Nuaud - EI - est Agent Commercial mandataire en immobilier, immatriculé au Registre Spécial des Agents Commerciaux du Tribunal de Commerce de Nantes sous le n°903116770.
Siège social du mandant : effiCity, 48 avenue de Villiers - 75017 PARIS - Société par Actions Simplifiée, société au capital de 132 373,05 euros, immatriculée au RCS Paris 497 617 746 et titulaire de la Carte professionnelle CPI 75[Coordonnées masquées]02 025 - CCI Paris IDF - Caisse de Garantie : GALIAN Assurances 89 rue de la Boétie 75008 Paris
Voir plus

Référence: 205461
Bien en copropriété. Nombre de lots : 86. Charges de copropriété : 100 €.
Honoraires à la charge du vendeur.
Barème des honoraires
DPE
A
B
C
D
E
F
G
GES
A
B
C
D
E
F
G
Appartement à NANTES
Appartement à NANTES
Appartement à NANTES
Appartement à NANTES
Appartement à NANTES
Appartement à NANTES
Géorisques

Les informations sur les risques auxquels ce bien est exposé sont disponibles sur le site Géorisques : www.georisques.gouv.fr

Ce site est protégé par hCaptcha Politique de confidentialité et Conditions d’utilisation s’appliquent.