Bénéficiez des services de nos partenaires locaux soigneusement sélectionnés
pour vous accompagner dans votre parcours d'achat immobilier

Appartement 63 m² à Bastia

— Bastia 20600 —
169 000 €
63 m²
3 pièces
balcon/terrasse

Nos partenaires locaux
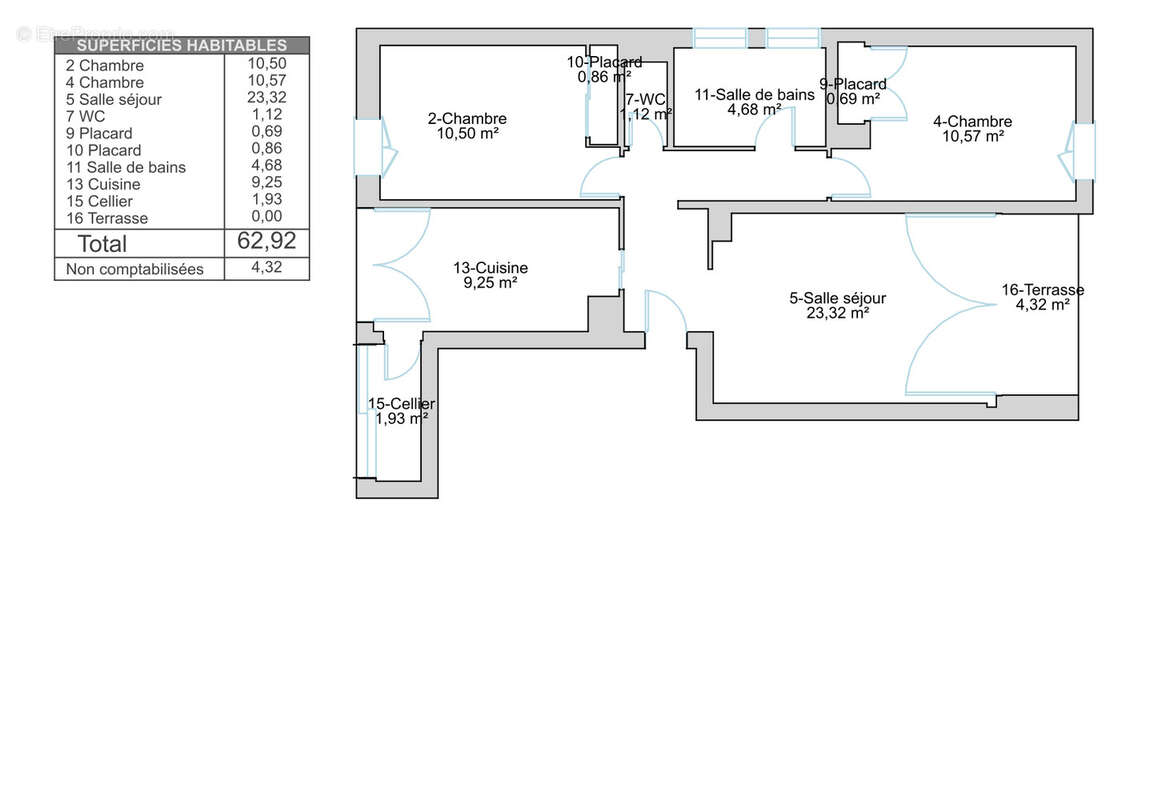
Votre agence 123webimmo vous présente : Bastia Sud - Appartement T3 lumineux de 63,50 m2 rénové en 2020 avec terrasse de 5 m2, cave et parking.
Ce bien parfaitement entretenu et bien rénové il y a 5 ans a eu une belle transformation.
Isolation phonique de tout l'appartement, électricité, plomberie, cumulus, salle de bains, menuiseries & baie vitrée, climatisations.
Bien équilibré, lumineux et traversant, il n'est pas soumis à des nuisances sonores routières car situé en bout de voie sans issue.
Le séjour climatisé possède un accès à la terrasse orientée Est.
La cuisine indépendante est équipée et bénéficie d'une buanderie utile pour positionner la machine à laver.
La salle de bains rénovée a une fenêtre, et le wc est indépendant.
Enfin, les 2 chambres de 11,50 m2 chacune possèdent un placard mural.
La cave de 5 m2 est saine, et le bien profite d'une place de parking.
N'hésitez pas à contacter Hubert au [Coordonnées masquées].

Les informations sur les risques auxquels ce bien est exposé sont disponibles sur le site du gouvernement : https://www.georisques.gouv.fr
Voir plus

Référence: WI_c56339
Honoraires à la charge du vendeur.
Barème des honoraires
DPE
A
B
C
D
E
F
G
GES
A
B
C
D
E
F
G
Séjour climatisé - Appartement à BASTIA
Séjour climatisé
Un T3 équilibré de 63,50 m2 - Appartement à BASTIA
Un T3 équilibré de 63,50 m2
Appartement rénové traversant - Appartement à BASTIA
Appartement rénové traversant
La cuisine est équipée et bénéficie d'une buanderie - Appartement à BASTIA
La cuisine est équipée et bénéficie d'une buanderie
Chambre n°1 de 11,50 m2 - Appartement à BASTIA
Chambre n°1 de 11,50 m2
Chambre n°2 de 11,50 m2 - Appartement à BASTIA
Chambre n°2 de 11,50 m2
Salle de bains rénovée (wc indépendant) - Appartement à BASTIA
Salle de bains rénovée (wc indépendant)
Terrasse couverte orienté Est - Appartement à BASTIA
Terrasse couverte orienté Est
Appartement à BASTIA
Séjour climatisé - Appartement à BASTIA
Séjour climatisé
Un T3 équilibré de 63,50 m2 - Appartement à BASTIA
Un T3 équilibré de 63,50 m2
Appartement rénové traversant - Appartement à BASTIA
Appartement rénové traversant
La cuisine est équipée et bénéficie d'une buanderie - Appartement à BASTIA
La cuisine est équipée et bénéficie d'une buanderie
Chambre n°1 de 11,50 m2 - Appartement à BASTIA
Chambre n°1 de 11,50 m2
Chambre n°2 de 11,50 m2 - Appartement à BASTIA
Chambre n°2 de 11,50 m2
Salle de bains rénovée (wc indépendant) - Appartement à BASTIA
Salle de bains rénovée (wc indépendant)
Terrasse couverte orienté Est - Appartement à BASTIA
Terrasse couverte orienté Est
Appartement à BASTIA
Géorisques

Les informations sur les risques auxquels ce bien est exposé sont disponibles sur le site Géorisques : www.georisques.gouv.fr

Ce site est protégé par hCaptcha Politique de confidentialité et Conditions d’utilisation s’appliquent.

En poursuivant votre navigation sans modifier vos paramètres, vous acceptez l'utilisation de cookies susceptibles de réaliser des statistiques de visite. Cliquez ici pour plus d'informations