Bénéficiez des services de nos partenaires locaux soigneusement sélectionnés
pour vous accompagner dans votre parcours d'achat immobilier

Pont-l’Évêque - Centre historique

— Pont-L'eveque 14130 —
1 200 000 €
450 m²
16 pièces

Nos partenaires locaux
Exclusivité - Maison de caractère avec jardin arboré

Situé en plein cœur du centre historique de Pont-l'Évêque, manoir normand du XVIe siècle, prolongé au XIXe siècle par une élégante extension en brique. Il est édifié sur une parcelle arborée de 2516 m², avec cour intérieure pavée, anciennes écuries et deux garages.
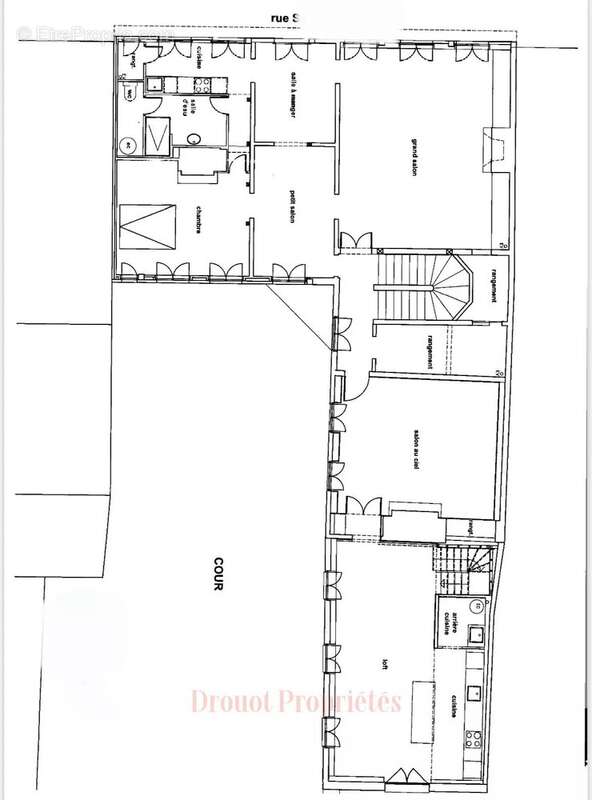
La maison, d'une surface de 400 m² habitables, se déploie sur deux niveaux principaux auxquels s'ajoutent environ 150 m² de combles aménageables.

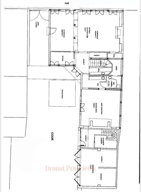
Le rez-de-chaussée se compose d'un double espace de réception (espace commercial aux normes ERP), actuellement exploité en galerie d'art et bénéficiant d'un double accès (rue et cour), et d'un vaste salon avec cheminée monumentale. L'ensemble dispose de volumes généreux (hauteur sous plafond d'environ 3,20 m).

Le premier étage se divise en deux appartements indépendants. La partie la plus ancienne, desservie par l'escalier principal, comprend un vaste salon avec cheminée, poutres apparentes et parquet en point de Hongrie, un second salon avec boiseries, plafond peint à l'imitation d'un ciel et parquet en point de Hongrie, une salle à manger, une cuisine indépendante, une grande chambre et son antichambre avec salle d'eau attenante et toilettes.

Un deuxième escalier donne accès à un appartement de type loft en duplex, donnant essentiellement sur le jardin, comprenant une grande pièce de réception avec cuisine et arrière-cuisine, et à l'étage une suite avec chambre, salle d'eau, toilettes et dressing.
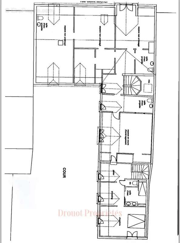
Au second étage se trouvent des combles aménageables (environ 150 m²) avec trois chambres supplémentaires potentielles et trois salles d'eau potentielles.

Le rez-de-chaussée donnant sur rue bénéficie d'une commercialité toujours en vigueur. Anciennement salon de thé, cet espace est actuellement un espace d'exposition d'art.
Voir plus

Référence: 86592126
Barème des honoraires
Maison à PONT-L'EVEQUE
Maison à PONT-L'EVEQUE
Maison à PONT-L'EVEQUE
Maison à PONT-L'EVEQUE
Maison à PONT-L'EVEQUE
Maison à PONT-L'EVEQUE
Maison à PONT-L'EVEQUE
Maison à PONT-L'EVEQUE
Maison à PONT-L'EVEQUE
Maison à PONT-L'EVEQUE
Maison à PONT-L'EVEQUE
Maison à PONT-L'EVEQUE
Maison à PONT-L'EVEQUE
Maison à PONT-L'EVEQUE
Maison à PONT-L'EVEQUE
Géorisques

Les informations sur les risques auxquels ce bien est exposé sont disponibles sur le site Géorisques : www.georisques.gouv.fr

Ce site est protégé par hCaptcha Politique de confidentialité et Conditions d’utilisation s’appliquent.

En poursuivant votre navigation sans modifier vos paramètres, vous acceptez l'utilisation de cookies susceptibles de réaliser des statistiques de visite. Cliquez ici pour plus d'informations