Terrain 610 m² à Marennes

— Marennes 17320 —
100 000 €
610 m²

17320 - MARENNES PLAGE - TERRAIN 610M2 PARTIELLEMENT CONSTRUCTIBLE - PERMIS DE CONSTRUIRE ACCORDÉ
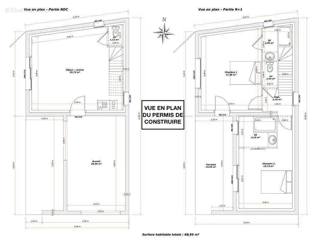
À Marennes Plage, découvrez ce terrain de 610 m² partiellement constructible bénéficiant d'un permis de construire déjà accordé.
Le projet a fait l'objet d'une étude permettant d'optimiser les surfaces, l'implantation de la future construction en privilégiant l'ensoleillement, le confort de vie et une vue mer depuis la terrasse située à l'étage. Les pièces principales, séjour, chambres et terrasses sont orientées sud-ouest, garantissant une belle luminosité tout au long de la journée.
Ce terrain, non viabilisé, dispose d'un accès direct depuis la rue en bordure ainsi que des réseaux à proximité, facilitant ainsi les démarches de raccordement.
Une belle opportunité pour un projet de résidence principale ou secondaire dans un cadre privilégié.
Pour plus d'informations, contactez Arnaud DUCOUDERT / [Coordonnées masquées] ou Karine PINEAU / [Coordonnées masquées]
Les informations sur les risques auxquels ce bien est exposé sont disponibles sur le site Georisque : georisques. gouv. fr
Karine Pineau - EI - est Agent Commercial mandataire en immobilier, immatriculé au Registre Spécial des Agents Commerciaux du Tribunal de Commerce de La Rochelle sous le n°908196371.
Siège social du mandant : effiCity, 48 avenue de Villiers - 75017 PARIS - Société par Actions Simplifiée, société au capital de 132 373,05 euros, immatriculée au RCS Paris 497 617 746 et titulaire de la Carte professionnelle CPI 75[Coordonnées masquées]02 025 - CCI Paris IDF - Caisse de Garantie : GALIAN Assurances 89 rue de la Boétie 75008 Paris
Voir plus

Référence: 206402
Honoraires d'agence de 9.890000000000001% à la charge de l'acquéreur
Barème des honoraires
Terrain à MARENNES
Terrain à MARENNES
Terrain à MARENNES
Terrain à MARENNES
Terrain à MARENNES
Géorisques

Les informations sur les risques auxquels ce bien est exposé sont disponibles sur le site Géorisques : www.georisques.gouv.fr

Ce site est protégé par hCaptcha Politique de confidentialité et Conditions d’utilisation s’appliquent.

En poursuivant votre navigation sans modifier vos paramètres, vous acceptez l'utilisation de cookies susceptibles de réaliser des statistiques de visite. Cliquez ici pour plus d'informations