Bénéficiez des services de nos partenaires locaux soigneusement sélectionnés
pour vous accompagner dans votre parcours d'achat immobilier

Maison 203 m² à La Madeleine-De-Nonancourt

— La Madeleine-De-Nonancourt 27320 —
449 800 €
203 m² / 7 465 m²
11 pièces
jardin

Nos partenaires locaux
Situé à La Madeleine de Nonancourt, cet ancien corps de ferme représente une réelle opportunité d'investissement, tant pour une opération de division parcellaire que pour un projet de valorisation immobilière.
L'ensemble est implanté sur un terrain clos d'environ 7 465 m², offrant la possibilité de créer 8 parcelles constructibles, en complément de la parcelle existante comprenant les bâtiments actuels.
Le bâti existant se compose de :
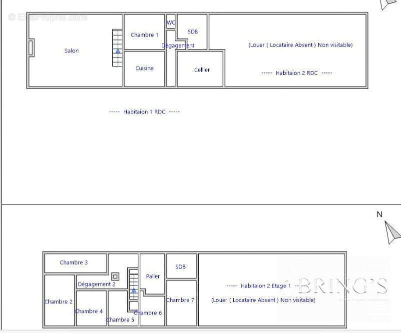
Une maison principale d'environ 203 m², comprenant :
-Au rez-de-chaussée : entrée, vaste salon/séjour avec cheminée, cuisine indépendante aménagée, chambre, grande salle de douche avec espace buanderie, WC indépendant, cellier.
-À l'étage : pièce palière, 5 chambres supplémentaires, bureau, salle de douche avec WC.
Une seconde maison indépendante d'environ 132 m², comprenant :
-Au rez-de-chaussée : salon/séjour, cuisine aménagée, salle de douche, WC, buanderie.
-À l'étage : palier desservant 4 chambres.
De nombreuses dépendances complètent l'ensemble :
Bâtiment fermé d'environ 196 m²
Plusieurs box fermés et ouverts (environ 30 m², 56 m², 60 m²)
Box avec fosse mécanique
Trois garages
Diverses dépendances
Les deux habitations sont raccordées au tout-à-l'égout, équipées de double vitrage, de volets roulants électriques et d'un chauffage électrique.
Atouts pour investisseurs :
Potentiel de division en 8 lots constructibles
Présence de deux habitations exploitables immédiatement (location, revente à la découpe ou logement de fonction)
Importantes surfaces annexes permettant stockage, activité artisanale ou réhabilitation
Configuration idéale pour projet de lotissement ou opération mixte (résidentiel + activité)
Bien à fort potentiel de valorisation sur un secteur recherché.
Note DPE : classe E- GES : B Montant estimé des dépenses annuelles d'énergie pour un usage standard entre 4 620 euros et 6 280 euros indexées aux années 2021, 2022 et 2023.
Prix HAI : 449 800 euros dont 16 800 euros (soit 3,90%) d'honoraires inclus à la charge de l'acquéreur, prix hors honoraires : 433 000 euros.
« Les informations sur les risques auxquels ce bien est exposé sont disponibles sur le site Géorisques : www. georisques. gouv. Fr ».
Pour visiter et vous accompagner dans votre projet, contactez Christel LAUCHER, au [Coordonnées masquées] ou, par courriel à [Coordonnées masquées]
Selon l'article L.561.5 du Code Monétaire et Financier, pour l'organisation de la visite, la présentation d'une pièce d'identité vous sera demandée.
Cette présente annonce a été rédigée sous la responsabilité éditoriale de Christel LAUCHER agissant sous le statut d'agent commercial immatriculé au RSAC Chartres 877475236 auprès de Bring's immobilier, SAS au capital de 1.000 € dont le siège social est 32 Boulevard de Strasbourg, Chez ABC LIV, CS30108, Paris Cedex 10, RCS Paris Ile de France n°878 259 407, titulaire de la carte professionnelle Transactions sur immeubles et fonds de commerce n°CPI75[Coordonnées masquées]44456 délivrée par CCI Paris Île-de-France
Mandat réf : 3961 - Le professionnel garantit et sécurise votre projet immobilier.

Honoraires inclus de 3.88% TTC à la charge de l'acquéreur. Prix hors honoraires 433 000 €. Classe énergie E, Classe climat B. Les informations sur les risques auxquels ce bien est exposé sont disponibles sur le site Géorisques : georisques.gouv.fr.

Votre conseiller BRING'S-Réseau et agence immobilière Paris : Christel LAUCHER
Agent comme...
Voir plus

Référence: 3961-BRINGS-.
Honoraires d'agence de 3.88% à la charge de l'acquéreur
Barème des honoraires
DPE
A
B
C
D
E
F
G
GES
A
B
C
D
E
F
G
Maison à LA MADELEINE-DE-NONANCOURT
Maison à LA MADELEINE-DE-NONANCOURT
Maison à LA MADELEINE-DE-NONANCOURT
Maison à LA MADELEINE-DE-NONANCOURT
Maison à LA MADELEINE-DE-NONANCOURT
Maison à LA MADELEINE-DE-NONANCOURT
Maison à LA MADELEINE-DE-NONANCOURT
Maison à LA MADELEINE-DE-NONANCOURT
Maison à LA MADELEINE-DE-NONANCOURT
Géorisques

Les informations sur les risques auxquels ce bien est exposé sont disponibles sur le site Géorisques : www.georisques.gouv.fr

Ce site est protégé par hCaptcha Politique de confidentialité et Conditions d’utilisation s’appliquent.

En poursuivant votre navigation sans modifier vos paramètres, vous acceptez l'utilisation de cookies susceptibles de réaliser des statistiques de visite. Cliquez ici pour plus d'informations