Bénéficiez des services de nos partenaires locaux soigneusement sélectionnés
pour vous accompagner dans votre parcours d'achat immobilier

Magnifique villa provençale

— Bandol 83150 —
1 300 000 €
270 m² / 1 732 m²
12 pièces
jardinpiscine

Nos partenaires locaux
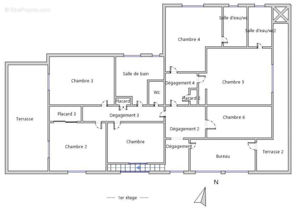
Charmante villa provençale et familiale, s'étendant sur environ 260 m2 (230m2 pour l'habitation principale + 30 m2 pour le T2 indépendant), répartis sur 3 niveaux, offrant une vue imprenable sur la mer depuis l'étage, située sur un joli terrain spacieux de 1732 m2, agrémenté d'une piscine traditionnelle de 10 x 5 mètres, avec une cuisine d'été équipée d'un BBQ et d'un four à pizza. Idéalement située, à proximité des plages et du centre-ville, dans un secteur recherché, cette propriété possède un fort potentiel, avec la possibilité d'un agrandissement. Au niveau principal, côté piscine, se trouve un salon spacieux et une cuisine ouverte, ainsi qu'une suite parentale avec salle d'eau attenante, offrant un accès pratique et convivial. À l'étage, découvrez six chambres confortables, deux salles d'eau, une salle de bain et un bureau, assurant un espace de vie fonctionnel pour toute la famille. Les combles ont été astucieusement aménagés en deux chambres supplémentaires, une salle d'eau et une salle de jeu, avec une terrasse offrant une vue panoramique sur la mer, idéale pour se détendre et profiter de l'environnement paisible. En rez-de-jardin, un appartement T2 indépendant avec sa propre terrasse offre une solution d'hébergement supplémentaire ou la possibilité de revenus locatifs. Pour garantir un accès facile et pratique entre le RdC et le 1er étage, un ascenseur a été prévu, assurant ainsi un confort absolu pour tous les occupants. Coup de c?ur assuré, A découvrir rapidement.
Voir plus

Référence: 12020868
Honoraires à la charge du vendeur.
Barème des honoraires
DPE
A
B
C
D
E
F
G
GES
A
B
C
D
E
F
G
Maison à BANDOL
Maison à BANDOL
Maison à BANDOL
Maison à BANDOL
Maison à BANDOL
Maison à BANDOL
Maison à BANDOL
Maison à BANDOL
Maison à BANDOL
Maison à BANDOL
Maison à BANDOL
Maison à BANDOL
Maison à BANDOL
Maison à BANDOL
Géorisques

Les informations sur les risques auxquels ce bien est exposé sont disponibles sur le site Géorisques : www.georisques.gouv.fr

Ce site est protégé par hCaptcha Politique de confidentialité et Conditions d’utilisation s’appliquent.

En poursuivant votre navigation sans modifier vos paramètres, vous acceptez l'utilisation de cookies susceptibles de réaliser des statistiques de visite. Cliquez ici pour plus d'informations