Bénéficiez des services de nos partenaires locaux soigneusement sélectionnés
pour vous accompagner dans votre parcours d'achat immobilier

Maison 105 m² à Luisant

— Luisant 28600 —
259 900 €
105 m² / 1 024 m²
5 pièces
parkingbalcon/terrassejardin

Nos partenaires locaux
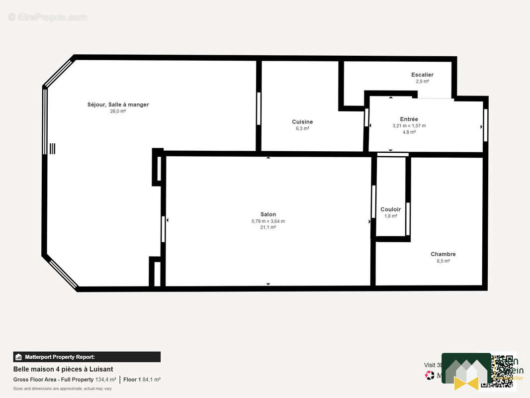
Maison de caractère en pierre avec jardin et garage
Découvrez cette jolie maison de ville, avec ses 105 m² habitables, 5 pièces dont 3 chambres.

Agencement de la maison :

- Au rez-de-chaussée :

Une entrée
Un salon
Une cuisine équipée et aménagée
Un WC séparé
Chambre
Véranda

- A l'étage :

Une salle d'eau
Deux chambres
Un palier

- Extérieur et annexe :

Un sous-sol
Une allée menant à un garage indépendant
Jardin entièrement clos avec terrasse

- Côté confort :

Ouvertures en PVC double vitrage
Chaudière à granulés
Panneaux solaires

- Situation géographique avantageuse

Proximité du centre-ville de Luisant — commerces, services, écoles sont accessibles à pied ou en bus.
A 2km du centre ville de Chartres.
Gare SNCF de Lucé ou Chartres à proximité, avec des trains TER.
Pour plus d'informations ou pour planifier une visite, contactez dès maintenant votre agent au Noeud Pap' ! ??

Honoraires à la charge du vendeur. Classe énergie E, Classe climat B Montant moyen estimé des dépenses annuelles d'énergie pour un usage standard, établi à partir des prix de l'énergie de l'année 2025 : entre 2646.00 et 3582.00 €. Les informations sur les risques auxquels ce bien est exposé sont disponibles sur le site Géorisques : georisques.gouv.fr.

Votre conseiller Bien Serein immobilier : Morgan GOHIER
Agent commercial (Entreprise individuelle)
RSAC 910254119
Voir plus

Référence: 847-BIENSEREIN28
Honoraires à la charge du vendeur.
Barème des honoraires
DPE
A
B
C
D
E
F
G
GES
A
B
C
D
E
F
G
Maison à LUISANT
Maison à LUISANT
Maison à LUISANT
Maison à LUISANT
Maison à LUISANT
Maison à LUISANT
Maison à LUISANT
Maison à LUISANT
Maison à LUISANT
Géorisques

Les informations sur les risques auxquels ce bien est exposé sont disponibles sur le site Géorisques : www.georisques.gouv.fr

Ce site est protégé par hCaptcha Politique de confidentialité et Conditions d’utilisation s’appliquent.

En poursuivant votre navigation sans modifier vos paramètres, vous acceptez l'utilisation de cookies susceptibles de réaliser des statistiques de visite. Cliquez ici pour plus d'informations