Bénéficiez des services de nos partenaires locaux soigneusement sélectionnés
pour vous accompagner dans votre parcours d'achat immobilier

Local commercial de 154,4m2 modulable Gerland

— Lyon-7e 69007 —
330 000 €
154 m²
4 pièces

Nos partenaires locaux



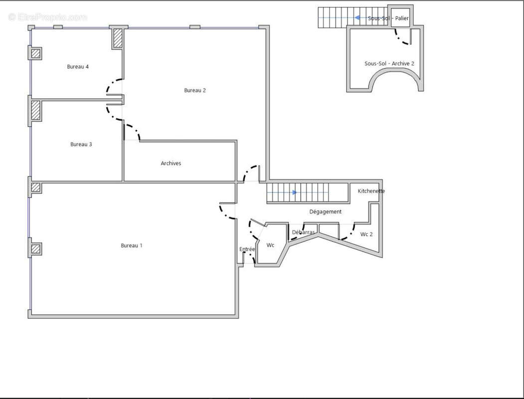
Plateau de bureaux modulable offrant une organisation fonctionnelle et efficace, composé de quatre espaces de travail distincts, dont un grand open space aux volumes confortables. Entrée indépendante, circulation fluide et espace archives dédié pour une gestion optimale de l’activité.Les locaux disposent d’une kitchenette, de deux WC indépendants, d’un débarras et sont complétés par une surface d’archives en sous-sol, idéale pour le stockage.Un ensemble professionnel structuré, parfaitement adapté aux professions libérales, cabinets, sociétés de services ou activités administratives recherchant des bureaux immédiatement exploitables.
Avis Carla : des locaux bien agencés, modulables et prêts à l’emploi, offrant un cadre de travail fonctionnel et adapté à une large typologie d’activités tertiaires.


Voir plus

Bien en copropriété. Nombre de lots : 31.
Honoraires à la charge du vendeur.
Barème des honoraires
Autre à LYON-7E
Autre à LYON-7E
Autre à LYON-7E
Autre à LYON-7E
Autre à LYON-7E
Autre à LYON-7E
Géorisques

Les informations sur les risques auxquels ce bien est exposé sont disponibles sur le site Géorisques : www.georisques.gouv.fr

Ce site est protégé par hCaptcha Politique de confidentialité et Conditions d’utilisation s’appliquent.

En poursuivant votre navigation sans modifier vos paramètres, vous acceptez l'utilisation de cookies susceptibles de réaliser des statistiques de visite. Cliquez ici pour plus d'informations