Bénéficiez des services de nos partenaires locaux soigneusement sélectionnés
pour vous accompagner dans votre parcours d'achat immobilier

Maison 102 m² à Clermont-L'herault

— Clermont-L'herault 34800 —
329 000 €
102 m² / 412 m²
5 pièces
parkingjardin

Nos partenaires locaux
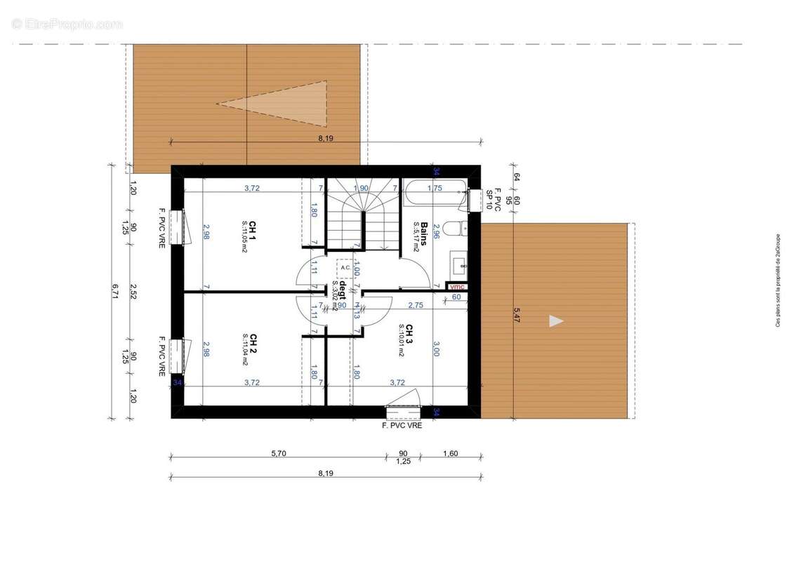
Nous vous proposons cette villa neuve, prévue pour fin 2026, développant une surface habitable d'environ 102 m² sur un terrain de 412 m².
Elle se compose, au nez-de-chaussée, d'un séjour/cuisine de 40m2 ainsi qu'une suite parentale et WC indépendant.
À l'étage, trois chambres confortables et une salle de bains avec WC, répondant parfaitement aux exigences d'une vie familiale.
Le stationnement est facilité par un garage, complété par deux places extérieures.
À l'extérieur, un jardin privatif d'environ 280 m² offre un cadre idéal pour des moments de détente.
Exposée sud-ouest, la propriété bénéficie d'un ensoleillement optimal tout au long de la journée.
Enfin, la situation géographique permet un accès rapide aux commodités, avec écoles, commerces situés à moins de dix minutes en voiture.

Honoraires à la charge du vendeur. DPE en cours. Les informations sur les risques auxquels ce bien est exposé sont disponibles sur le site Géorisques : georisques.gouv.fr.

Votre conseiller Alexandre Blanc Immobilier : Gautier MARTINEZ
Agent commercial (Entreprise individuelle)
RSAC 851061580
Voir plus

Référence: VM501-BLANC34
Honoraires à la charge du vendeur.
Barème des honoraires
Maison à CLERMONT-L'HERAULT
Maison à CLERMONT-L'HERAULT
Maison à CLERMONT-L'HERAULT
Maison à CLERMONT-L'HERAULT
Maison à CLERMONT-L'HERAULT
Géorisques

Les informations sur les risques auxquels ce bien est exposé sont disponibles sur le site Géorisques : www.georisques.gouv.fr

Ce site est protégé par hCaptcha Politique de confidentialité et Conditions d’utilisation s’appliquent.

En poursuivant votre navigation sans modifier vos paramètres, vous acceptez l'utilisation de cookies susceptibles de réaliser des statistiques de visite. Cliquez ici pour plus d'informations