Bénéficiez des services de nos partenaires locaux soigneusement sélectionnés
pour vous accompagner dans votre parcours d'achat immobilier

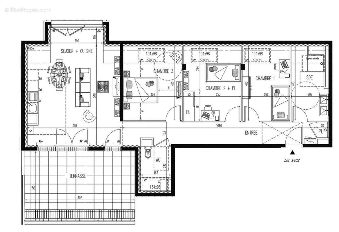
Appartement Rouen 4 pièces avec Terrasse et Parking

— Rouen 76000 —
315 000 €
90 m² / 20 m²
4 pièces
parkingbalcon/terrassejardinascenseur

Nos partenaires locaux
L'agence Guy Hoquet Normand'Immo vous propose cet appartement (de 88,58m² loi carrez) situé entre la préfecture (université) et Luciline Docks 76, à proximité des commerces, et des transports (T1 T2 T3), comprenant : Un couloir d'entrée, une pièce de vie avec cuisine ouverte aménagée équipée, trois chambres, une salle de douche et un toilette séparé. Une place de parking en sous-sol, et un local vélo complètent ce bien Le + Terrasse d'environ 20 m². Prestations : le chauffage et l'eau chaude assurée par une chaudière gaz de ville individuelle de 2023, l'assainissement est relié au tout-à -l'égout. La taxe foncière s'élève à 1600 euros annuels et les charges de copropriété 1400 euros/an. A vous de jouer pour cette pépite. +33[Coordonnées masquées] Anthony TOUASSI Agent Commercial - Numéro RSAC : 849 468 913 Copropriété de 25 lots. Charges annuelles : 1400 euros.
Voir plus

Référence: 1749
Bien en copropriété. Nombre de lots : 25. Charges de copropriété : 1400 €.
Honoraires à la charge du vendeur.
Barème des honoraires
DPE
A
B
C
D
E
F
G
GES
A
B
C
D
E
F
G
Appartement à ROUEN
Appartement à ROUEN
Appartement à ROUEN
Appartement à ROUEN
Appartement à ROUEN
Appartement à ROUEN
Appartement à ROUEN
Appartement à ROUEN
Appartement à ROUEN
Appartement à ROUEN
Appartement à ROUEN
Appartement à ROUEN
Appartement à ROUEN
Appartement à ROUEN
Appartement à ROUEN
Appartement à ROUEN
Appartement à ROUEN
Appartement à ROUEN
Géorisques

Les informations sur les risques auxquels ce bien est exposé sont disponibles sur le site Géorisques : www.georisques.gouv.fr

Ce site est protégé par hCaptcha Politique de confidentialité et Conditions d’utilisation s’appliquent.