Bénéficiez des services de nos partenaires locaux soigneusement sélectionnés
pour vous accompagner dans votre parcours d'achat immobilier

Voir tous les partenaires locaux

Caen maison d'habitation de 8 pieces principales a vendre

— Caen 14000 —
375 000 €
133 m² / 804 m²
8 pièces
jardin

Nos partenaires locaux
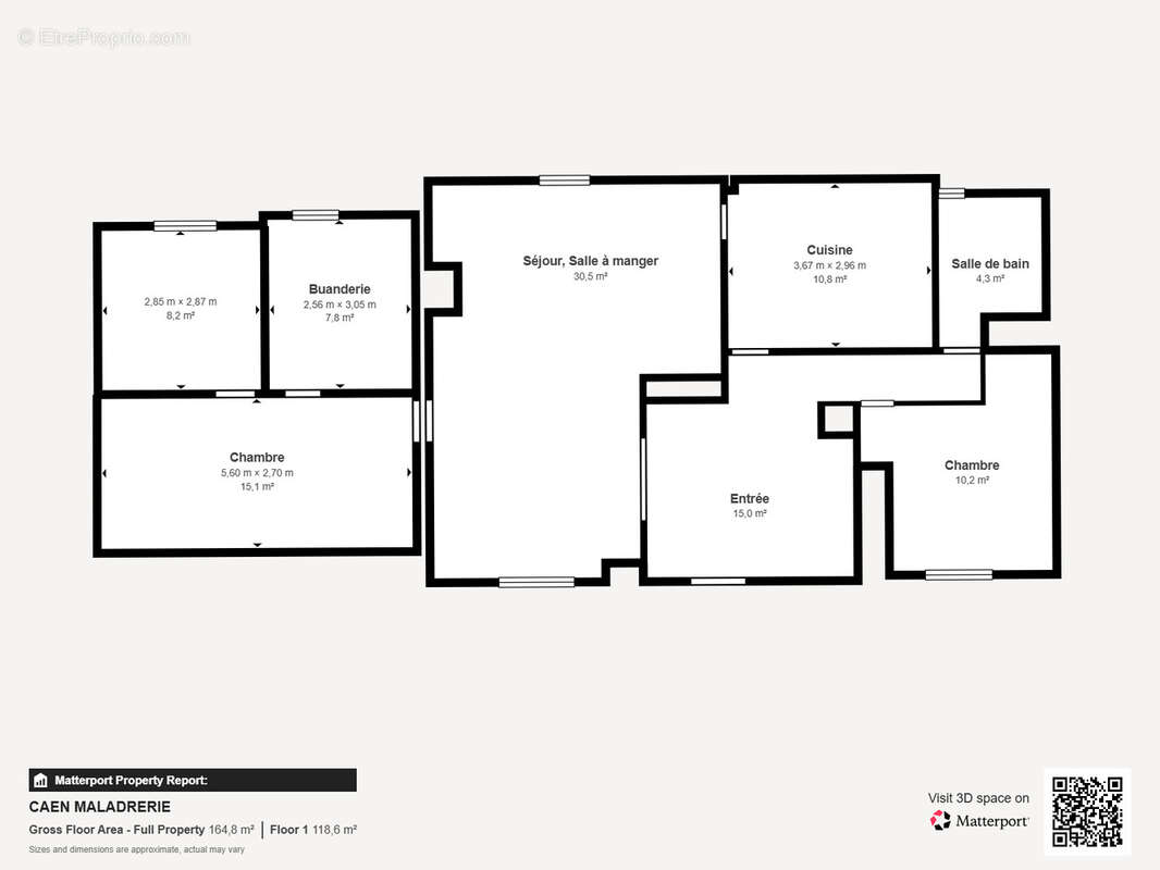
CAEN - Idéal professions libérales ou artisan - Quartier Maladrerie - Maison familiale d'habitation de 8 pièces principales de 133m2 habitables comprenant au rez-de-chaussée un grand hall d'entrée, un séjour/salon avec cheminée, une cuisine aménagée indépendante, deux chambres, un bureau (ou petite chambre 8m2), une salle de douches, un WC indépendant, une buanderie et combles aménageables en chambre.
A l'étage, deux chambres, une salle de douches et un WC indépendant.
Le tout sur un terrain de 804m2.
A l'extérieur, vous pourrez profiter d'un jardin clos, de deux garages dont un double (possibilité camping-car) et un atelier.
Accès facile vers Bayeux, tous commerces et transports en communs à proximité.
Consommation d'énergie : D , Gaz à effet de serre : B
Montant estimé des dépenses annuelles d'énergie : entre 2400€ et 3310€. Estimation réalisée à partir des prix énergétiques de référence de l'année 2021, 2022 et 2023.
Visite virtuelle disponible sur notre site internet.
Le prix de vente est de 375 000€.
Les informations sur les risques auxquels ce bien est exposé sont disponibles sur le site georisques.gouv.
Contactez-nous dès maintenant pour plus d'informations
Négociateur de ce bien : Elsa ALEXANDRE [Coordonnées masquées] L'agence: Cabinet QUESNÉE Immobilier [Coordonnées masquées]
Voir plus

Référence: 616
Honoraires à la charge du vendeur.
Barème des honoraires
DPE
A
B
C
D
E
F
G
GES
A
B
C
D
E
F
G
Maison à CAEN
Maison à CAEN
Maison à CAEN
Maison à CAEN
Maison à CAEN
Maison à CAEN
Maison à CAEN
Maison à CAEN
Maison à CAEN
Maison à CAEN
Maison à CAEN
Maison à CAEN
Maison à CAEN
Géorisques

Les informations sur les risques auxquels ce bien est exposé sont disponibles sur le site Géorisques : www.georisques.gouv.fr

Ce site est protégé par hCaptcha Politique de confidentialité et Conditions d’utilisation s’appliquent.

En poursuivant votre navigation sans modifier vos paramètres, vous acceptez l'utilisation de cookies susceptibles de réaliser des statistiques de visite. Cliquez ici pour plus d'informations