Bénéficiez des services de nos partenaires locaux soigneusement sélectionnés
pour vous accompagner dans votre parcours d'achat immobilier

283 m² à Colombelles

— Colombelles 14460 —
492 800 €
283 m²

Nos partenaires locaux
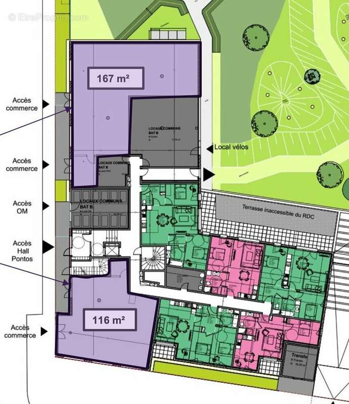
Au sein d'un programme neuf en cours de construction, deux cellules commerciales vendues en VEFA, situées dans un environnement en plein développement à proximité immédiate des axes principaux.Surface totale possible d'environ 283 m², divisible à partir de 116 m².
Deux surfaces disponibles : 167 m² et 116 m².
Il est encore possible de fusionner les deux locaux pour former un seul espace en modifiant l'implantation du local vélos.Les cellules sont situées en rez-de-chaussée d'un ensemble immobilier neuf à usage mixte.Ces locaux vous sont proposés à la vente par PROLOCAUX.
Voir plus

Référence: 14_000020
Honoraires d'agence de 8% à la charge de l'acquéreur
Autre à COLOMBELLES
Autre à COLOMBELLES
Géorisques

Les informations sur les risques auxquels ce bien est exposé sont disponibles sur le site Géorisques : www.georisques.gouv.fr

Ce site est protégé par hCaptcha Politique de confidentialité et Conditions d’utilisation s’appliquent.

En poursuivant votre navigation sans modifier vos paramètres, vous acceptez l'utilisation de cookies susceptibles de réaliser des statistiques de visite. Cliquez ici pour plus d'informations