Bénéficiez des services de nos partenaires locaux soigneusement sélectionnés
pour vous accompagner dans votre parcours d'achat immobilier

Ploubazlanec - Le Bourg et ces commerces ! Familiale de caractère en pierre 6 pièces

— Ploubazlanec 22620 —
586 880 €
147 m² / 1 390 m²
6 pièces
parkingjardin

Nos partenaires locaux
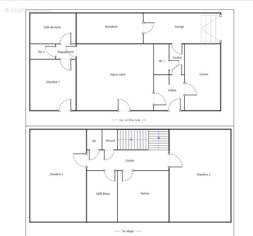
Magnifique Longère en pierres à acquérir d'environ 147 m², idéalement située à 200 mètres du bourg, dans un environnement privilégié au calme, et proche plage. Cette maison de charme, récemment rénové avec soin se compose : d'une entrée avec placard, une cuisine indépendante aménagée et équipée, un lumineux salon/séjour de plus de 50 m² qui sera vous accueillir et vous réchauffer grâce à son poêle à bois dernière génération. Vous accéderez ensuite à l'espace nuit avec une belle chambre, une salle de bains avec douche, un wc séparé. A l'étage : trois belles chambres, une salle d'eau, un placard, un WC. Un garage, une grande buanderie complète ce bien, clos de mur en pierres sur une parcelle arboré, verdoyante d'environ 1395 m² constructible, qui offre un cadre de vie idéal sans vis à vis. Amoureux du charme authentique, idéalement située à quelques minutes de la mer, cette demeure allie le cachet de l'ancien et du confort moderne. A saisir rapidement ! Prix FAI : 586 880 euros dont 4.80 % honoraires TTC à la charge de l'acquéreur. Rachel PEREZ (EI) Agent Commercial - Numéro RSAC : 930 727 979 - SAINT BRIEUC.
Voir plus

Référence: 34124
Honoraires d'agence de 4.8% à la charge de l'acquéreur
Barème des honoraires
DPE
A
B
C
D
E
F
G
GES
A
B
C
D
E
F
G
Maison à PLOUBAZLANEC
Maison à PLOUBAZLANEC
Maison à PLOUBAZLANEC
Maison à PLOUBAZLANEC
Maison à PLOUBAZLANEC
Maison à PLOUBAZLANEC
Maison à PLOUBAZLANEC
Maison à PLOUBAZLANEC
Maison à PLOUBAZLANEC
Maison à PLOUBAZLANEC
Maison à PLOUBAZLANEC
Maison à PLOUBAZLANEC
Maison à PLOUBAZLANEC
Maison à PLOUBAZLANEC
Maison à PLOUBAZLANEC
Maison à PLOUBAZLANEC
Maison à PLOUBAZLANEC
Maison à PLOUBAZLANEC
Maison à PLOUBAZLANEC
Maison à PLOUBAZLANEC
Maison à PLOUBAZLANEC
Maison à PLOUBAZLANEC
Maison à PLOUBAZLANEC
Maison à PLOUBAZLANEC
Maison à PLOUBAZLANEC
Maison à PLOUBAZLANEC
Géorisques

Les informations sur les risques auxquels ce bien est exposé sont disponibles sur le site Géorisques : www.georisques.gouv.fr

Ce site est protégé par hCaptcha Politique de confidentialité et Conditions d’utilisation s’appliquent.

En poursuivant votre navigation sans modifier vos paramètres, vous acceptez l'utilisation de cookies susceptibles de réaliser des statistiques de visite. Cliquez ici pour plus d'informations